Как заменить проводку в деревянном доме
Для полной замены проводки открытого типа проводится демонтаж старой с кабель-каналами и распределительным щитком.
Как осуществить частичную замену отдельного ответвления, если в доме установлена открытая проводка:
- Отключить автомат, отвечающий за конкретный провод.
- Отсоединить все проводки от клемм.
- Снять крышку соответствующего кабельного канала.
- Отсоединить розетки и выключатели от провода.
- Вытащить старый и поставить новый кабель.
Обратите внимание! Замена скрытого кабеля проводится по-другому. Он обрезается от всех концов (автомата, люстр, розеток), затем снимается или захоранивается
Алгоритм работ по установке нового кабеля такой же, как и в случае начального монтажа системы.
Подбор автоматики и защиты
Даже качественная проводка, смонтированная по всем правилам, должна быть защищена от колебаний напряжения, перегрузок и утечек. Для этого используются автоматические предохранители, соответствующие характеристикам сети и требованиям безопасности.
Устройство защитного отключения
При утечках, возникающих при прикосновении к неисправной цепи, пробою на корпус или землю, образуется разница между входящим и выходящим током. УЗО определяет ее и сравнивает с максимально допустимой. Если дифференциальный ток равен нулю, утечки нет, аппарат не срабатывает. В противном случае он отключает цепь, подача тока прекращается. Часто причиной аварийной ситуации становится повреждение изоляции проводки.
Схема подключенияУЗО
УЗО защищает не только от поражения электричеством, но и возгорания приборов. Его устанавливают в распределительный щит или подключают через розетку к системе дома.
Автоматы защиты от перегрузок
Это устройство используется, чтобы не допустить перегрев цепи при коротком замыкании или одновременном включении всех приборов. Его нужно подбирать по превышению тока перегрузки и времени отсечки. При этом учитывается максимальная нагрузка при одновременно включенных приборах и допустимая нагрузка на кабель, а также время срабатывания.
Автомат механически отключает электричество при коротком замыкании в цепи. Для световых линий используется устройство типа В с превышением тока отсечки в 3-5 раз к номинальному. Для розеточных цепей типа С отключение предусмотрено при превышении в 5-10 раз.
При коротком замыкании время отсечки не должно превышать 0,4 секунды для сетей с напряжением 220 Вольт, 0,1 — для 380 Вольт. Все характеристики, необходимые для выбора автомата, должны соответствовать ГОСТ 50571.5-94.
Реле контроля напряжений
Скачки напряжения в отечественных линиях — частое явление. Причем аварийное отключение на подстанциях срабатывает через несколько секунд, которых достаточно для выведения из строя большей части домашней бытовой техники. В гарантийный ремонт эти приборы уже не возьмут, поэтому замену сгоревших запчастей нужно будет проводить за свой счет.
Чтобы обезопасить домовые сети от скачка напряжения, встраивается специальное реле контроля. Оно срабатывает при повышении потенциала и почти мгновенно отключает включенные в цепь приборы.
При выборе устройства нужно учитывать:
- количество фаз в домовой сети;
- номинальную мощность;
- время срабатывания;
- интервал рабочих напряжений;
- возможность установить напряжение самостоятельно;
- наличие защиты от перегрева.
Чтобы правильно подобрать реле, нужно также учесть номинальную нагрузку установленных автоматических выключателей. Так для автоматов на 25 А требуется реле на 32-40 А, чтобы защитить дом при скачке напряжения.
Заземление
При монтаже проводки в деревянном доме не стоит забывать о простой, но вместе с тем эффективной защите от поражения электрическим током. Заземление снижает напряжение прикосновения до безопасной величины, отводя его избыток в землю.
В качестве заземляющего контура используются замкнутые, линейные или глубинные конструкции, изготовленные из металлических труб или арматуры. Их погружают на глубину 1,5-10 м недалеко от дома и соединяют с общей системой с помощью главной заземляющей шины.
Можно использовать металлические каркасы фундаментов и опор, скважины, колодцы, коммуникации (кроме газовых трубопроводов). Выбирать конструкцию заземлителя нужно исходя из количества фаз в цепи, характеристик грунта, климатических условий, которые влияют на проводимость почвы.
Защита от ударов молний
Разряд молнии может достигать огромной силы и стать причиной поломки бытовых приборов и пожара. Для деревянных домов это особенно опасно, поэтому защита от подобных явлений природы очень желательна.
Для отведения высокого напряжения от прямых ударов молний на крыше дома устраивается пассивная молниезащита. Конструкция представляет собой вертикальный приемник, отводящий медный или оцинкованный проводник диаметром не менее 8 мм и отдельный контур заземления (желательно несколько). Сопротивление заземлителя — не более 10 Ом.
Молниезащита выполняется из оцинкованных прутков или сетки. Крепится система с помощью специальных держателей над всеми выступающими элементами кровли. При монтаже расстояние от проводника до горючих стен должно быть не менее 10 см. Токоотводящие элементы нужно размещать вдали от входа.
Последовательность этапов работ по установке проводки в деревянном доме
Безопасная и правильная последовательность установки проводки и электрики в деревянном доме состоит из следующих шагов:
- Создание проекта проводки электроснабжения, учитывая пиковую нагрузку всего оборудования здания;
- Подбор необходимой проводки, силовых агрегатов, работающих от электроэнергии, а также системы креплений (с учетом рассчитанной предельной нагрузки);
- Монтажные мероприятия, направленные на подключение сети к распределительному щиту, и установка дополнительного оборудования (счетчик, выключатели);Проводка кабелей и проводов согласно утвержденному проекту;
- Установка розеток, источников света, выключателей и другого необходимого оборудования;
- Монтаж и подсоединение заземления, а также устройства защитного отключения;
Без хорошего заземления не защитить дом от неприятностейИсточник strojdvor.ru
Проведение контрольного тестирования электропроводки.
Создание проекта проводки в деревянном доме должно выполняться в строгом соответствии со сводом правил устройства электроустановок. При выборе и разметке трассы проводки необходимо избегать большого числа изгибов и поворотов.
Если строение имеет характерные архитектурные особенности или же на стенах присутствуют какие-либо препятствия, что вызывает трудности при выполнении протяжки проводов, в таких местах требуется установка специализированных распределительных коробов из металла (сталь/медь). Число таких распаечных чаш должно быть оптимальным, так как любое излишнее соединение, произведенное при соблюдении всех норм и правил, вносит в электрическую цепь элементы ослабления и ненадежности, что в свою очередь пагубно сказывается на безопасности.
Короб распределения должен находиться в доступном местеИсточник karkasdomproekt.ru
Установка таких распаечных коробок обязана производиться с соблюдением следующих норм и правил:
- Несущие характеристики, а также прочность стен и перекрытий деревянного дома не должны нарушаться во время выбора глубины монтажа труб, через которые будут протягиваться кабеля. Расчет числа и месторасположения изгибов, распределительных коробов и других компонентов ведется таким образом, чтобы в случае надобности, без особых проблем, можно было произвести замену части провода, избежав необходимости в нанесении повреждений и разборки деревянных элементов дома;
- Выбор диаметра и толщины стенок трубы из металла производится с учетом характеристик проводов, а также их количества. Допускается прокладка как одного, так и нескольких кабелей в одной подводке, но в сумме они не должны занимать более 40% пространства внутри трубы. При этом учитывается именно наружная толщина провода, в том числе и его изоляционный слой;
- Толщина стенок подводки подбирается в соответствии с сечением кабеля (его жил), проходящего в ней, во время установки проводки в деревянных строениях.
Прежде чем проводить протяжку провода в трубе, необходимо произвести измерения на сопротивление изоляционного слоя. Данная манипуляция выполняется, чтобы проверить техническое состояние проводника и его соответствие характеристикам, утвержденным в проекте.
Проверка сопротивления изоляции проводки снизит вероятность возгоранияИсточник bizlida.by
Процесс проверки помогает определить наличие повреждений изоляционного слоя во время всех этапов обустройства проводки в деревянном доме.
Кабеля, которые используются для проводки в деревянном доме, имеют специальное клеймление. К их свойствам можно отнести защиту от воспламенения при высоких показателях температуры.
Электропроводка в деревянном доме: как правильно и безопасно реализовать разводку электросети (105 фото)

Проведение электромонтажных работ — один из самых важных этапов в строительстве. Подача электроэнергии в дом жизненно необходимо для полноценного существования человека. Особенно актуальным это становиться для проживающих в загородной зоне.
Соответствие всем правилам безопасности — важный момент при возведении деревянных конструкций. Электрическое обеспечение дома обязано всегда строго следовать установленным нормам и правилам.
Проведение работ своими силам?
Если строительство дома и отделочные работы без проблем можно провести своими силами, то монтаж электропроводки в деревянном доме в большинстве случаев требует рук специалиста. Хотя довольно часто владельцы загородных домов (имеется в виду мужская половина) проводят такие работы самостоятельно.
Это и понятно. Настоящему хозяину нужно уметь разбираться в подобных вещах. Для начинающих же «электриков» существует пошаговая методика осуществления процесса монтирования электрической проводки, с учётом необходимых требований, следуя которым можно качественно провести соответствующие работы.
Этапы работ
Правильная электропроводка в деревянном доме заключается в точном соблюдении следующих этапов:
Необходимо определить общий объём мощности электрооборудования и выполнить проект расположения линии электроснабжения. Этот этап требует обращения за помощью к специалистам в конкретной области.
Здесь рассчитывать на собственные силы не стоит. И это будет правильно. Только специалист сможет провести качественную проектную разработку прокладки линий электроснабжения. Определить места сосредоточения электроточек, высчитать сечения кабеля, место монтирования и подсоединения автомата защиты, точку ввода в дом электропитания.
Формат розеток и выключателей выбирается на основании расчетной величины тока, типа электропроводки, подразумевающего скрытую или открытую форму устройства, а также возможности подключить совмещённый блок, включающий розетку и выключатель, расположенные под единой рамкой.
Выбор кабеля
Сама разводка электропроводки в деревянном доме, тем более выполненная своими руками, требует обращения к компетентным источникам для получения необходимой информации. Таким источником может стать электротехнический справочник и содержащаяся в нём таблица с расчётами сечений кабеля относительно нагрузке.
Данные содержащиеся в таблице дают возможность подобрать кабель нужного сечения, который будет всецело отвечать рассчитанной мощности электроприборов
После закупки всех необходимых устройств, проводят монтаж электропроводки. Проводка в деревянном доме, как уже говорилось выше, может быть двух типов: открытая и закрытая. В первом случае провода размещают в кабель каналах.
Сечения каналов подбирают согласно количеству и сечению проводов, которые необходимо будет скрыть. Крепление к поверхности проводится специальными зажимами.
Обратите внимание
Скрытая электропроводка в деревянном доме более эффективна, поскольку делает помещение более приглядным. В то же время, нужно помнить о правилах безопасности дома. Провода обычно скрывают в гофротрубе и располагают за каркасом подвесных или подшивных потолков.
После монтажа проводов и электроприборов проводят организацию профилактических испытаний.
После того как проводка смонтирована её нужно проверить на качество. Поэтому делают проверочный тест с помощью электроизмерительных приборов.
Испытания проводятся опять же специалистом. Полный комплекс выполняемых работ включает:
- проведение визуального осмотра;
- замер силы сопротивления изоляционного кабельного покрытия;
- проведение профилактического измерения сопротивления заземления;
- анализирование работы автоматических выключателей.
Разработка проекта домашнего электроснабжения
Чтобы разработать индивидуальный проект, нужно, прежде всего, связаться с электроснабжающей организацией (РЭС) и получить технические условия. Они послужат основанием для дальнейшего проведения работ.
Разработанная схема электроснабжения учитывает совокупность всех потребляемых мощностей электроприборов.
Опираясь на данный фактор, выполняется расчет максимальной мощности, которую одновременно потребляют все электроприборы. Определяется номинальная нагрузка на вводный автомат.
Главное — безопасность дома!
Можно ещё раз повториться, сказав, что электротехнические работы, проводимые в домах с деревянными конструкциями стен, полов и потолков требуют особого подхода. Нужно учитывать состав основного строительного материала и особенно его подверженность горению.
№6. Прокладка кабеля по комнатам
Сечение кабелей проводки зависит от того, какая нагрузка на них будет возлагаться. Это предмет серьезных расчетов, но пользоваться можно и таблицами, в которых уже просчитано сечение проводов в зависимости от тока, мощности и напряжения.

Открытая проводка в кабель-каналах
Перед началом работ лучше всего разметить места будущего расположения розеток и выключателей. Лучше всего по безопасности и эстетике в деревянном доме монтировать открытую проводку в кабель-каналах. Они выполняются из самозатухающего пластика, представляют собой короб с защелкой, размер и цвет могут отличаться. Процесс прокладки проводки в этом случае таков:
- выбирают кабель-канал, который соответствует количеству проводов и их сечению;
- снимают крышку и крепят коробку канала к поверхности на саморезы;
- в местах соединения кабелей ставят распределительные коробки;
- основание розеток и выключателей (используются только те, что предназначены для внешней проводки), крепят на назначенные места;
- кабель укладывают в канал, закрывают крышкой;
- концы кабелей соединят в распределительных коробках. Подключают кабель к розеткам, выключателям и автоматам.
Внутренняя проводка в металлической трубе
Если вы решились монтировать скрытую проводку в деревянном доме, то порядок действий будет таким:
- подготовка штроб и установка открытых распределительных коробок, они должны быть в свободном доступе даже после обшивки стен;
- проход проводки через стены делают с помощью с металлических труб, которые называют проходными гильзами. В стене сначала готовят отверстие необходимого диаметра, потом ставят гильзу, по краям она должна иметь пластиковую втулку. Специальные металлические гильзы ставят под розетки и выключатели;
- диаметр трубы выбирают такой, чтобы после заводки всех кабелей, в ней оставалось 60% свободного места. Предпочтение отдается медным трубам, которые хорошо гнутся и легко режутся. Концы труб после резки хорошо шлифуют или же снабжают их пластиковыми ободками. К деревянной поверхности трубы крепят хомутами, к металлическим гильзам – благодаря развальцовке трубы внутри гильзы;
- протягивают кабель сквозь трубу и проверяют изоляцию;
- соединение кабелей в распределительных коробках и подключение к розеткам, выключателям.
Соединение проводов
В распределительных коробках провода могут соединяться одним из следующих способов:
- соединение сизами. Это специальные изолирующие колпачки, которые позволяют соединить два предварительно зачищенных на 2-3 см и скрученных между собой провода. Колпачки очень просто одеваются и стоят недорого;
- соединение вагами не менее простое, но более надежное. Подбирается вага с соответствующим количеством отверстий для проводов, в них кабели вставляются до щелчка;
- опрессовка гильзами – один из самых современных методов, но понадобится специальное оборудование;
- дедовский способ скрутки с последующей изоляцией изолентой в деревянном доме лучше не использовать.
Остается только установить розетки и выключатели. Для деревянного дома лучше всего подойдет фурнитура, выполненная под дерево, но это не обязательно. Далее следуют работы по подключению всех групп проводов к щитку, установка счетчика, УЗО и автоматов.
Также понадобится выполнить заземление. Для этого около дома копают яму в форме равностороннего треугольника со стороной 1 м. Глубина не менее 30 см. В вершины треугольника вбивают металлический уголок или штырь длиной 3 м, между собой их соединяют уголком длиной 1 м, используя сварку. В одном из уголков делают отверстие и крепят в нем заземляющий проводник с помощью болта и гайки, его выводят в распределительный щиток и подсоединяют к заземляющей шине, к ней же подсоединяют заземляющие жилы кабелей.

После завершения всех монтажных работ вызывают специалистов электролаборатории, которые проводят все необходимые испытания и выдают протокол, подтверждающий правильность выполнения проводки и ее безопасность. Схему проводки рекомендуют наклеить на внутреннюю поверхность дверцы щитка – так будет намного удобнее сориентироваться в случае возникновения аварии.
Выполнять все работы по монтажу электропроводки в деревянном доме необходимо только при наличии соответствующих знаний и опыта. При малейших сомнениях лучше звать специалистов – от качества и правильности выполнения всех этапов работ зависит безопасность дома и его жильцов.
Статья написана для сайта remstroiblog.ru.
Проект электроснабжения деревянного дома
На первом этапе необходимо построить план дома с указанием точек расположения выключателей, розеток, приборов освещения и распределительных коробок. Владельцу следует определить места установки оборудования, требующего отдельного питания (стиральной машинки, котла отопления, варочной панели и т.п.). После расчета мощности нагрузки по группам определяется сечение провода для разводки, подбираются предохранители и дополнительные защитные устройства (например, грозоразрядники).

Выбор провода и электроустройств
Для подбора нужного сечения кабеля по таблицам определяют пиковую мощность нагрузки, которая будет подключаться к розетке или магистрали электропроводки.
Изоляция не должна поддерживать горение (например, в жилых домах используют кабели марки NYM с дополнительной оболочкой). В проводке необходима дополнительная жила для подключения заземления. Розетки и выключатели подбирают по мощности оборудования и по дизайну дома.
Пример таблицы соответствия сечения, диаметра и мощности нагрузки для медного кабеля (при напряжении 220 В) приведен ниже. Существуют специальные онлайн-калькуляторы, позволяющие подобрать сечение кабеля по исходным условиям (напряжению, числу фаз, мощности нагрузки, протяженности магистралей и материалу жил).
| Мощность, кВт | Сечение, мм² | Диаметр, мм |
| 3,0 | 1,0 | 1,12 |
| 4,1 | 2,0 | 1,59 |
| 5,9 | 4,0 | 2,26 |
| 11,0 | 10,0 | 3,57 |
Выбор вводного кабеля и автоматического выключателя
В жилой дом необходимо завести силовой кабель, выдерживающий пиковую нагрузку всего оборудования с запасом не менее 20%. Если производится установка новой разводки с использованием проводов с увеличенным сечением, то необходимо проверить диаметр жил ввода (при недостаточном размере кабель необходимо поменять). Поскольку установить своими руками силовую магистраль невозможно, оформляют заявку в сбытовую компанию и оплачивают стоимость услуги.
Тип автоматического выключателя зависит от количества фаз в цепи питания (1 или 3). Для стандартных бытовых сетей напряжением 220 В используют дифференциальный автомат, обеспечивающий разрыв фазы. Номинал выключателя должен соответствовать пиковой нагрузке. В противном случае возможно преждевременное отключение питания или перегрев жил из-за перегрузки (например, в случае короткого замыкания).
Номинал и тип автомата однофазного питания
Для определения номинала автомата необходимо вычислить силу тока по формуле I=(P/U)xcosµ, где:
- I — искомая сила тока;
- P — общая мощность приборов, Вт;
- U — напряжение;
- cosµ — поправочный коэффициент, принимается равным 0,8.
Также следует определить силу тока при коротком замыкании. Данную величину рассчитывают по уравнению I=3260*S/L, где литера S обозначает сечение жилы в мм², а L равна протяженности магистрали. Следует учитывать, что формула подходит для расчета проводки длиной до 5 м. На основании полученных данных вычисляют коэффициент соотношения силы тока при коротком замыкании к силе тока при коммутации пиковой нагрузки. Показатель учитывают при подборе дифференциального автомата.
Подготовка материалов и инструментов
Для проведения открытого монтажа потребуется минимальный набор материалов и инструментов:
- электрический провод (длину определяют по схеме, а сечение подбирают по нагрузке);
- розетки, выключатели и монтажные коробки для открытого монтажа;
- распределительный щит с автоматическими предохранителями и дифференциальным выключателем;
- электрический счетчик (при условии установки прибора в помещении);
- кабель-каналы с крышками;
- соединительные клеммы;
- строительный уровень;
- тестовый прибор;
- отвертки с плоским и крестообразным жалом;
- инструмент для снятия изоляции;
- электрическая дрель или шуруповерт;
- различные шурупы по дереву;
- изоляционная лента;
- ножовка или электрический лобзик;
- чертежный инструмент;
- изоляционная лента.
Монтаж электропроводки в деревянном доме своими руками: внутренние работы
Монтаж эл проводки в деревянном доме может иметь некоторые различия в технологии укладки кабеля, а также в расходных материалах независимо от выбранного типа. Скрытую проводку прокладывают обычно при более эстетичной отделке стен, размещая их в специальных коробах из металла или негорючего пластика непосредственно между основанием стены и обшивкой (могут монтироваться в утеплитель). Такой вариант идеально подходит при капитальном ремонте деревянного дома или сразу после его постройки.
Скрытая электропроводка в деревянном доме укладывается в огнеупорные короба. Если они монтируются на дерево или легкоплавкие изоляционные материалы, то перед этим места укладки должны быть тщательно обработаны огнезащитой.
В качестве кабель-каналов особенно предпочтительны медные трубы или алюминиевые, так как они дешевле. Их предпочитают, так как они легко гнутся на «холодную» и не передают тепло при нагреве кабеля. Стальные же часто выбирают из-за более низкой стоимости, но при значительных поворотных радиусах их приходится нагревать газовыми горелками или паяльными лампами.
Скрытая проводка в деревянном доме: разработка проекта и определение трассы
Начиная работы, важно составлять подробный монтажный проект разводки проводов, согласно которой выполняется нанесение трассы линий проводов и установка точек расположения разветвительных и соединительных коробок, выключателей и розеток, а также элементов электросети. Что касается самой трассы, то желательно, чтобы она имела как можно меньше загибов и наклонных линий (в идеале, все линии должны быть параллельны между собой и относительно стен/пола комнаты), но если это невозможно, то следует предусмотреть соединительные коробки для нескольких линий проводки
Они, как правило, размещаются в максимально доступных местах для обслуживания, а не в перекрытиях или перестенках
Что касается самой трассы, то желательно, чтобы она имела как можно меньше загибов и наклонных линий (в идеале, все линии должны быть параллельны между собой и относительно стен/пола комнаты), но если это невозможно, то следует предусмотреть соединительные коробки для нескольких линий проводки. Они, как правило, размещаются в максимально доступных местах для обслуживания, а не в перекрытиях или перестенках.
После распланировки монтажной трассы можно подготавливать стены, а именно сверлить отверстия для коробов и металлических патрубков или штробить, в зависимости от выбранного типа установки.
Электрика в деревянном доме своими руками: как правильно выбрать короба и трубки
Размер трубок зависит от диаметра выбранного кабеля, а также от количества линий проводки (в одну трубку не рекомендуется укладка более двух линий). Необходимо чтобы электропровода протягивались в них легко, не занимая при этом более 40% их внутренней площади. Толщина металла также имеет значение, чтобы предотвратить их прогорание при коротком замыкании.
К примеру:
- при выборе проводов из меди (сечением ≤ 2,5 кв.мм) и из алюминия (≤ 4 кв.мм) толщина не нормирована;
- для кабелей с диаметром ≤ 6 кв.мм – толщина должна быть не менее 2,5 миллиметров;
- минимум 2,8 мм допускается для труб из алюминия и меди с сечением ≤ 10 и 4 кв.мм соответственно;
- 3,2 миллиметра – для проводов диаметром ≤ 25 и 10 кв.мм.
Основные правила при выполнении работ
Подготовив поверхности, можно приступать к прокладке коробов и размещению подрозетников и выключателей. Для этого в поверхностях просверливаются гнезда нужного размера и заводятся трубы, к которым и будут крепиться монтажные коробки.
В том случае, когда используется медный кабель, после заведения важно развальцевать концы и припаять к самой коробке, а края стальных можно прикрепить сваркой. Распаечные коробки устанавливаются таким же способом, главное, чтобы все соединения имели надежную антикоррозийную защиту, а все элементы общей конструкции заземлены без разрывов в цепи
Для электропроводки обычно используются трехжильные или пятижильные провода, оснащенные заземляющими проводниками. На концах труб устанавливают особые втулки, защищающие изоляцию от возможных повреждений.
Далее можно приступить к присоединению жил кабеля к электрооборудованию. При подсоединении электророзеток и выключателей нельзя допустить повреждения изоляции элементами крепежа.
Общие требования к устройству проводки
Основное отличие деревянных домов от железобетонных и кирпичных сооружений – в высокой степени пожароопасности. Это значит, что к выбору электроустройств, кабелей и к условиям их монтажа применяются повышенные требования.
По статистике, около 1/2 случаев пожаров или возгораний в деревянных домах или в домах с деревянной отделкой происходит из-за грубых ошибок электромонтажников.
Стоит неправильно установить розетку, недостаточно тщательно соединить провода в распаечной коробке, проигнорировать правила заземления, как может возникнуть возгорание, а вслед за ним – и пожар.

Нетребовательные владельцы деревянного дома поручают работы по электромонтажу соседям, знакомым или выполняют самостоятельно, не зная досконально норм ПУЭ. Печальный результат доверчивости и непрофессионализма – на фото
Знать основные правила электромонтажа необходимо по двум причинам: чтобы иметь возможность самостоятельно выполнять часть монтажных или ремонтных работ и чтобы контролировать действия недобросовестных «специалистов».
Следует запомнить следующие требования:
- Технические характеристики кабелей и электрооборудования должны максимально соответствовать потребляемой мощности приборов каждой отдельной группы.
- Эксплуатацию розеток, выключателей, приборов аварийного отключения необходимо производить с учетом возложенной на них нагрузки.
- Использовать кабели, провода, клеммные соединения при их регулярном нагреве запрещено.
- Необходимо полностью исключить переход огня с кабеля на конструкции из дерева или других легковоспламеняющихся материалов с помощью несгораемой защиты.
Электропроводка должна быть полностью безопасной для владельцев дома, их семей (особенно маленьких детей) и домашних животных.

Строгие требования выдвигаются на первый план, при этом порой приходится жертвовать эстетичностью. Например, владельцам деревянного коттеджа необходимо смириться с наружными розетками и усиленной защитой как скрытой, так и открытой электропроводки (НПБ 246—97)
Материал из видеообзоров и инструкций, размещенных в интернете, весьма противоречив, поэтому полностью опираться на мнение людей в рабочих комбинезонах не стоит. Ориентироваться следует на выдержки из нормативной документации – разделы ПУЭ, СНиПов, ГОСТов.
Прокладка и монтаж скрытой проводки
Чтобы выполнить монтаж скрытой проводки, схему можно начертить самостоятельно. Для начала нарисуйте поэтажный план дома (включая подвал и чердак) с учетом всех размеров. Необходимую документацию можно взять у застройщика, хотя она обязана храниться и у владельца жилья. Затем с помощью специальных обозначений выставьте все электрические точки: лампы, розетки, автоматические выключатели и т. д. После начертите линии, обозначающие прокладку скрытой проводки. Обязательно укажите в плане, на каком расстоянии от потолка или пола находится кабель, особенно если проводка скрытого типа.

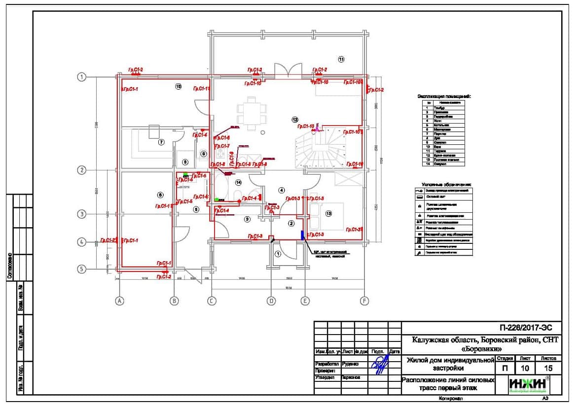
Приведем пример электрической схемы дома. На ней показаны провода освещения, силовые кабели и провод заземления. Условными знаками изображены светильники, розетки, выключатели и распределительные коробки. Такая схема очень наглядна, по ней можно выполнять все необходимые расчеты, а в дальнейшем, если понадобится, узнать точное место прокладки проводов.
№6. Прокладка кабеля по комнатам
Сечение кабелей проводки зависит от того, какая нагрузка на них будет возлагаться. Это предмет серьезных расчетов, но пользоваться можно и таблицами, в которых уже просчитано сечение проводов в зависимости от тока, мощности и напряжения.

Открытая проводка в кабель-каналах
Перед началом работ лучше всего разметить места будущего расположения розеток и выключателей. Лучше всего по безопасности и эстетике в деревянном доме монтировать открытую проводку в кабель-каналах. Они выполняются из самозатухающего пластика, представляют собой короб с защелкой, размер и цвет могут отличаться. Процесс прокладки проводки в этом случае таков:
- выбирают кабель-канал, который соответствует количеству проводов и их сечению;
- снимают крышку и крепят коробку канала к поверхности на саморезы;
- в местах соединения кабелей ставят распределительные коробки;
- основание розеток и выключателей (используются только те, что предназначены для внешней проводки), крепят на назначенные места;
- кабель укладывают в канал, закрывают крышкой;
- концы кабелей соединят в распределительных коробках. Подключают кабель к розеткам, выключателям и автоматам.
Внутренняя проводка в металлической трубе
Если вы решились монтировать скрытую проводку в деревянном доме, то порядок действий будет таким:
- подготовка штроб и установка открытых распределительных коробок, они должны быть в свободном доступе даже после обшивки стен;
- проход проводки через стены делают с помощью с металлических труб, которые называют проходными гильзами. В стене сначала готовят отверстие необходимого диаметра, потом ставят гильзу, по краям она должна иметь пластиковую втулку. Специальные металлические гильзы ставят под розетки и выключатели;
- диаметр трубы выбирают такой, чтобы после заводки всех кабелей, в ней оставалось 60% свободного места. Предпочтение отдается медным трубам, которые хорошо гнутся и легко режутся. Концы труб после резки хорошо шлифуют или же снабжают их пластиковыми ободками. К деревянной поверхности трубы крепят хомутами, к металлическим гильзам – благодаря развальцовке трубы внутри гильзы;
- протягивают кабель сквозь трубу и проверяют изоляцию;
- соединение кабелей в распределительных коробках и подключение к розеткам, выключателям.
Проведение работ своими силам?
Если строительство дома и отделочные работы без проблем можно провести своими силами, то монтаж электропроводки в деревянном доме в большинстве случаев требует рук специалиста. Хотя довольно часто владельцы загородных домов (имеется в виду мужская половина) проводят такие работы самостоятельно.

Это и понятно. Настоящему хозяину нужно уметь разбираться в подобных вещах. Для начинающих же «электриков» существует пошаговая методика осуществления процесса монтирования электрической проводки, с учётом необходимых требований, следуя которым можно качественно провести соответствующие работы.























































