Стандартная схема разводки
Обычно такая схема предполагает использование труб из металлического пластика — так могут рассказать в проектно-инженерных бюро. Однако эти трубы можно легко заменить на полипропиленовые или даже медные. Что интересно, сегодня медные трубы вновь стали востребованными.
Дело в том, что несмотря на все их недостатки, включая дороговизну, они обладают весьма существенным преимуществом: теплоноситель, циркулирующий по медным трубам и радиаторам, не нуждается в замене долгие и долгие годы. По сути, можно один раз залить — и всё, на всю жизнь хватит!
Стандартная схема разводки системы отопления в двухэтажном доме
Фитинги, различные фасонные системы, соединители и прочие комплектующие соединяются только в зависимости от угла своего наклона и взаимного расположения от друг друга. Такая схема разводки обычно требует и использования различных кранов: начиная от шаровых и заканчивая радиаторными (все они прямые).
После того как произойдёт расчёт согласно схеме, рассчитывается и необходимое количество радиаторов и их секций. Последние крепятся на специальные кронштейны. Соответственно, чем секций будет больше — тем больше понадобится и кронштейнов (или другой фурнитуры, которая может их заменить).
Как выровнять неравномерность нагрева радиаторов?
Обычный способ выравнивания их теплоотдачи при неодинаковом прогреве — постепенное наращивание тепловой мощности (или, что эквивалентно, числа секций) радиаторов по ходу движения теплоносителя в контуре. Если мощность первого в контуре отопительного прибора принять за 100 %, то у следующего она 110 %, и так далее вплоть до 150-200 % мощности у последнего (в зависимости от числа последовательных радиаторов).
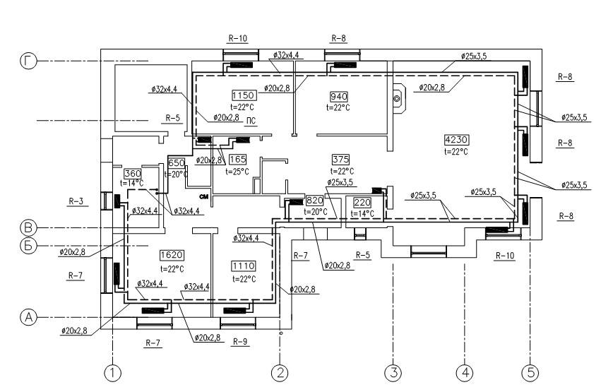
При выполнении однотрубной системы отопления двухэтажного дома, схема которой включает магистральную трубу, диаметр последней берется большим. Так при выполнении подводок к радиаторам металлопластиковой трубой Ду16, для восьми-девяти отопительных приборов в этажном контуре следует брать «магистралку» с Ду40. Труба Ду32 работать будет, но устойчивость системы понизится. Это означает, что любое изменение температуры теплоносителя будет вести к ее разбалансировке, т.е. заметному изменению разности температур нагрева соседних радиаторов в контуре.
Распространены схемы «однотрубок» с обвязкой радиаторов т.наз. «байпасами», как показано на фото ниже.

Подключение радиатора в «ленинградской» схеме с байпасом.
Это участки меньшего диаметра, включаемые в разрывы магистрали под радиаторами, иногда еще и с устанавленным устройством регулирования расхода (игольчатым вентилем или др.). Регулировочные вентили ставятся и в одну (или в обе!) подводки к радиаторам. Получается, что вместо сплошной магистрали одного диаметра имеется труба переменного диаметра. При этом монтажники-практики ошибочно полагают, что для разветвления потока теплоносителя на две составляющих в тройнике подводки к радиатору требуется сузить основной проход для него. Это неверно, поскольку жидкость, находящаяся под давлением, заполнит любой свободный объем, встречающийся на пути ее потока.
Конечно, если в такой схеме со множеством устройств регулирования расхода постоянно заниматься ручным управлением прогревом каждого прибора, то можно-таки, тратя уйму времен, постоянно добиваться их равномерного нагрева. Но стоит ли «овчинка выделки»? Если делать «однотрубку», то присоединять радиаторы следует к магистрали неизменного большого диаметра, обеспечивая им стабильную работу при небольшом снижении нагрева приборов вдоль контура.
Заключение
Если радиаторы в однотрубной схеме присоединить к магистральной трубе с диаметром, по крайне мере вдвое превышающим диаметр подводок к ним (при соответствующем размере фитингов), то ценой таких затрат на материалы можно добиться снижения температуры в цепочке до 8-10 приборов. В двухтрубной схеме тот же результат достигается при небольшом диаметре всех труб отопления.
Как реализовать альтернативное отопление частного дома
Двухтрубная система отопления частного дома — классификация, разновидности и практические навыки проектирования
Однотрубная и двухтрубная разводка отопления в частном доме
Принудительная циркуляция
В случае с принудительной циркуляцией разводка отопления от котла в частном двухэтажном доме дополняется циркуляционным насосом, который гонит теплоноситель по трубам с нужной скоростью. Это более современный и эффективный вариант обогрева здания.
Принудительная схема отопления двухэтажного частного дома наделена такими преимуществами:
- быстрый обогрев всех помещений;
- возможность устанавливать трубы минимального диаметра;
- детали трубопровода не испытывают перепады температуры, и поэтому служат достаточно долго;
- можно регулировать температуру в доме;
- можно регулировать температуру в каждой комнате отдельно.

Циркуляционный насос это обязательная часть принудительной схемы отопленияИсточник rookame.ru
Есть у системы с принудительной циркуляцией и свои минусы:
- в обесточенном доме система с насосом работать не будет;
- насос потребляет электроэнергию, в результате энергопотребление дома повышается;
- работающий насос создает шум, который, впрочем, при грамотном подборе и монтаже оборудования, будет практически незаметным.
Однотрубная схема отопления
Однотрубная система отопления двухэтажного дома, схема которой предполагает поочередное подключение радиаторов к трубопроводу, имеет такие преимущества:
- минимальная затрата материалов при монтаже;
- возможность проложить трубы там, где это нужно, даже в самых труднодоступных местах;
- одна труба, проложенная вдоль стены, выглядит эстетичные, чем две;
- быстрый и легкий монтаж.
В числе минусов такие особенности:
- если потребуется ремонт или замена какой-либо детали системы, нужно останавливать ее всю;
- тепло распространяется неравномерно, чем ближе помещение к котельной, тем выше температура в радиаторах.
Если в однотрубных системах применяется параллельное подключение конвекторов – такая схема называется «ленинградка»Источник teplomirkr.ru
Двухтрубная схема
Двухтрубная схема предусматривает два контура труб, подведенных к радиаторам. В первой магистрали находится горячая вода, поступающая из котла кратчайшим путем к каждому радиатору. Во втором – остывший теплоноситель, который возвращается в котел. Монтаж отопления в двухэтажном доме по двухтрубной схеме более сложен. Однако преимущества данного варианта настолько убедительны, что в большинстве современных домов отопление обустраивается именно по двухтрубному принципу. Перечислим основные плюсы:
- во все радиаторы попадает теплоноситель одинаковой температуры;
- в дальних комнатах так же тепло, как и в ближних, поэтому не нужно наращивать количество секций радиаторов для выравнивания температуры;
- двухтрубные системы более удобны в управлении и регулировании.
Минусы:
- большой расход туб при монтаже;
- работа по установке двух линий труб вместо одной выходит достаточно дорогой.
А еще может быть использована универсальная схема – теплоноситель здесь перемещается самотеком, а при необходимости включается циркуляционный двигательИсточник termoresurs.ru
Лучевая схема отопления (снизу) – самая эффективная из существующих, но для монтажа надо большое количество трубИсточник rmnt.mirtesen.ru
Однотрубная схема отопления частного дома
Одним из самых простых вариантов является однотрубная система отопления (другое название – «ленинградка»). Эта система долгое время пользовалась спросом среди владельцев частных и загородных домов благодаря тому, что ее использование давало возможность обустроить автономное отопление, не требующее подключения к централизованной теплосети. Однотрубная схема отопления очень проста в обустройстве и может работать со всеми существующими типами отопительного оборудования.
Перечень достоинств «ленинградки» выглядит следующим образом:
- Количество труб, необходимое для монтажа системы, уменьшается в два раза, что существенно упрощает работу и дает возможность сэкономить на материалах;
- Система довольно проста, и ее вполне можно сделать своими руками, без привлечения специалистов;
- Однотрубная система довольно проста в эксплуатации и легко обслуживается при необходимости;
- Небольшое количество используемых труб делает интерьер помещений практически неизменным, а при большой необходимости все трубы можно вообще спрятать в подпольном пространстве;
- При правильной конфигурации к однотрубной системе можно подключить теплый пол или же установить под дверными проемами трубу, подающую теплоноситель для парового отопления.

Несмотря на завидное количество достоинств, однотрубная разводка отопления в двухэтажном доме всегда оказывается малоэффективной. Самая большая проблема заключается в том, что при монтаже возникает масса проблем – разрешимых, но все же проблем. В частности, горизонтальная разводка «ленинградки» не позволяет обустраивать теплый пол.
Типы радиаторов для обогрева многоквартирных домов
В многоэтажных домах нет единого правила, позволяющего использовать конкретный вид радиатора, поэтому выбор особо не ограничивается. Схема отопления многоэтажного дома довольно универсальна и имеет хороший баланс между температурой и давлением.
К основным моделям радиаторов, используемых в квартирах, можно отнести следующие устройства:
- Чугунные батареи. Нередко используются даже в самых современных зданиях. Дешево стоят и очень легко монтируются: как правило, установкой данного типа радиаторов владельцы квартир занимаются самостоятельно.
- Стальные отопители. Этот вариант является логичным продолжением разработок новых отопительных приборов. Будучи более современными, стальные панели отопления демонстрируют хорошие эстетические качества, довольно надежны и практичны. Очень хорошо сочетаются с регулирующими элементами отопительной системы. Специалисты сходятся во мнении, что именно стальные батареи можно назвать оптимальными при использовании в квартирах.
- Алюминиевые и биметаллические батареи. Изделия, изготовленные из алюминия, очень ценятся владельцами частных домов и квартир. Алюминиевые батареи имеют самые лучшие показатели, если сравнивать с предыдущими вариантами: отличные внешние данные, небольшой вес и компактность отлично сочетаются с высокими эксплуатационными характеристиками. Единственный минус этих устройств, который нередко отпугивает покупателей – высокая стоимость. Тем не менее, специалисты не рекомендуют экономить на отоплении и считают, что такое вложение окупится довольно быстро.
Заключение
Правильный выбор батарей для централизованной системы отопления зависит от рабочих показателей, которые присущи теплоносителю в данном районе. Зная скорость остывания теплоносителя и тем его движения, можно рассчитать необходимое количество секций радиатора, его размеры и материал. Не стоит забывать и о том, что при замене отопительных приборов необходимо проследить за соблюдением всех правил, поскольку их нарушение может привести к возникновению дефектов в системе, и тогда отопление в стене панельного дома не будет выполнять свои функции (прочитайте: «Трубы отопления в стене «).
Выполнять ремонтные работы в отопительной системе многоквартирного дома самостоятельно также не рекомендуется, особенно в том случае, если это отопление в стенах панельного дома: практика показывает, что жильцы домов, не имея соответствующих знаний, способны выбросить важный элемент системы, посчитав его ненужным. Централизованные системы отопления демонстрируют хорошие качества, но их нужно постоянно поддерживать в рабочем состоянии, а для этого нужно следить за многими показателями, включая теплоизоляцию, износ оборудования и регулярной замены отработавших свое элементов.
Порядок монтажа
Собирается однотрубная система следующим образом:
- В хозяйственном помещении устанавливается на пол или вешается на стену котел. С помощью газового оборудования может быть устроена самая надежная и эффективная однотрубная система отопления двухэтажного дома. Схема подключения в этом случае будет стандартной и позволит произвести все работы, при желании, даже и самостоятельно.
- На стены вешаются радиаторы отопления.
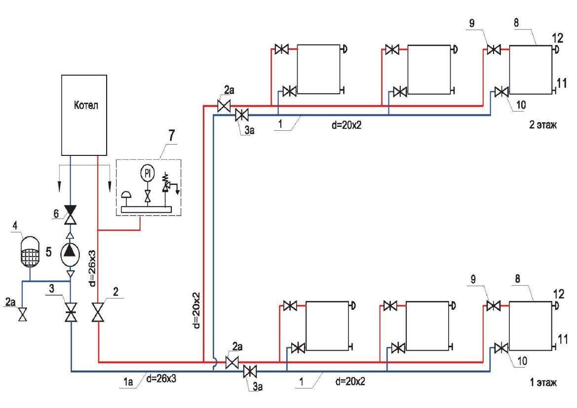
- На следующем этапе монтируются стояки «подводящий» и «обратный» на второй этаж. Располагают их в непосредственной близости от котла. Внизу к стоякам присоединяется контур первого этажа, вверху – второго.
- Далее выполняется подключение к магистралям батарей. На каждый радиатор следует установить запорный кран (на подводящем отрезке байпаса) и кран Маевского.
- В непосредственной близости от котла на «обратной» трубе монтируется расширительный бак.
- Также на «обратной» трубе поблизости от котла на байпасе с тремя кранами подключается циркуляционный насос. Перед ним на байпасе врезается специальный фильтр.
На заключительном этапе производится опрессовка системы в целях выявления неисправностей оборудования и протечек.
Как видите, однотрубная система отопления двухэтажного дома, схема которой максимально проста, может очень даже удобным и практичным оборудованием
Однако при желании использовать такую простую конструкцию, на первом этапе важно произвести все необходимые расчеты с максимальной точностью
Задумываясь над установкой отопления, первоначально определяются, какой вид топлива будет использоваться
Но наряду с этим крайне важно решить, насколько планируемый обогрев будет действительно независимым. Так, по-настоящему автономной будет система отопления без насоса, которой для работы не нужна электроэнергия
Для эффективной работы понадобится лишь источник тепла и правильно расположенный трубопровод
Для эффективной работы понадобится лишь источник тепла и правильно расположенный трубопровод.
Контур отопления — это совокупность элементов, предназначенных для обогревания жилища путём передачи тепла воздуху. Наиболее распространённым видом отопления является система, использующая в качестве источника нагрева котлы или бойлеры, подключённые к водопроводу. Вода, проходя через нагреватель, достигает определённой температуры, а после направляется в отопительный контур.
В системах с теплоносителем, в качестве которого используется вода, циркуляция может быть организована двумя путями:
В качестве источника тепла, служащего для нагревания воды, используются котлы (бойлеры). Их принцип действия основан на превращении определённого для них рода энергии в тепло с последующей его передачей теплоносителю. По типу источника нагрева котельное оборудование бывает газовым, твердотопливным, электрическим или мазутным.
По типу соединения элементов контура система отопления может быть однотрубной или двухтрубной. Если все приборы контура включены относительно друг друга последовательно, то есть теплоноситель проходит по порядку все элементы и возвращается в котёл, то такая система называется однотрубной. Её существенным недостатком является неравномерность прогрева. Это связано с тем, что на каждом элементе происходит потеря какого-то количества тепла, поэтому разница температур котла может быть существенной.
Система двухтрубного типа подразумевает параллельное подключение радиаторов к стояку. К недостаткам такого подключения относят осложнение конструкции и увеличенный в два раза расход материала по сравнению с однотрубной системой. Но построение контура обогрева для больших многоэтажных помещений выполняется только таким соединением.
Система с гравитационной циркуляцией чувствительна к ошибкам, допущенным во время монтажа отопления.
Типы циркуляции в СО
В отличие от многоквартирных жилых зданий, в которых централизованная поставка горячего теплоносителя ограничивает жителей квартир в выборе системы отопления (практически у всех жильцов – ленинградка с принудительной подачей жидкости), владельцы частных двухэтажек вправе самостоятельно определяться с типом установки своими руками СО с естественным типом циркуляции или принудительным вариантом транспортировки тепла. Рассмотрим отличительные особенности каждого из типов подачи применительно к двухэтажным строениям.
Естественная
Принцип действия данной системы базируется на процессе вытеснения горячей воды более холодной за счет разницы плотностей жидкостей при разных температурах нагрева.
По этой причине нередко контуры отопления с естественным побуждением движения тепла называют также гравитационными или самотечными системами.

Схема самотечного движения водяного теплоносителя при отоплении двухэтажки
Для контура циркуляции на гравитационном побуждении водяного теплоносителя характерны следующие особенности:
- низкая скорость перемещения водяной массы по теплотрассе;
- необходимость использования труб больших диаметров (Ду не менее одного-полутора дюймов);
- строгое соблюдение при монтаже своими руками необходимых уклонов горизонтальных участков;
- для обеспечения всех уклонов нередко котел приходится утапливать в специальном углублении.
Гравитационная схема в какой-то степени морально устарела. К ней не применимы современные тенденции в модернизации систем отопления частных построек:
- в самотечных контурах не ставят полимерные трубы, поскольку существует вероятность их расплавления при вскипании воды в трубопроводе при высоких нагрузках на котел;
- отсутствует возможность регулировки локального участка теплотрассы или отдельного отопительного прибора;
- невозможность отключения отдельного радиатора без нарушения работы всей СО.
Все эти недостатки перекрываются одним огромным плюсом, благодаря которому самотечные системы до сих пор монтируются. Этот важный фактор – энергонезависимость отопления, то есть возможность обогревать дом без электроэнергии в районах с перебоями с электричеством.
Принудительная
В данных системах движение теплоносителя происходит за счет нагнетания избыточного давления циркуляционным насосом.

Схема движения теплоносителя в СО напорного типа в двухэтажном здании
По сравнению с гравитационными контурами принудительная циркуляция в двухэтажных домах имеет ряд преимуществ:
- более высокая скорость перемещения жидкости в трубах;
- небольшие диаметры проходного сечения труб теплотрассы;
- возможность укладки труб удобным для монтажа способом;
- возможность реализации любого проекта по автоматизации управления микроклиматом в жилище;
- несложная регулировка параметров системы.
В двухэтажных строениях старой постройки с установленной ранее самотечной системой допускается в рамках модернизации установка насоса, что позволит реализовать основные достоинства напорных систем.
Распространенные ошибки при монтаже
Выше изображены «ленинградские» схемы горизонтальных однотрубных этажных контуров с радиаторами, подключенными к общей магистрали двумя тройниками. Через каждый прибор протекает только часть полного объема теплоносителя, циркулирующего по контуру. Можно встретить ошибочное подсоединение без магистральной трубы (см. контур первого этажа на рис. ниже).

Виды подключения радиаторов в горизонтальных однотрубных контурах.
Такой способ подключения радиаторов отопления является предельно дешевым. На каждый радиатор приходится один фитинг для присоединения металлопластиковой трубы Ду20 или Ду25 и отрезок трубы между соседними приборами. Дешевле не придумать. Но расплата за дешевизну – плохая работа половины радиаторов. Первый их них (по ходу движения теплоносителя) нагрет до температуры 55 °С, а последний при N=6-8 нагревается всего до 35 °С, поскольку теплоноситель, проходя через радиаторы, интенсивно остывает в них.
Виды двухтрубных систем двухэтажного дома
Прежде чем выбрать тот или иной вариант двухтрубной системы отопления двухэтажного дома, схему разводки труб и вид циркуляции, необходимо выяснить, какими же они могут быть.
Во-первых, в зависимости от пространственного расположения подводящей и отводящей магистрали двухтрубная система, также как и однотрубная, может быть выполнена по двум схемам:
- С горизонтальной разводкой — когда магистральные трубы на каждом этаже образуют отдельные условно горизонтальные (с соблюдением необходимых уклонов) контуры или петли;
- С вертикальной — когда подача нагретого теплоносителя к радиаторам в разных уровнях и отвод охлажденного, из них, осуществляется при помощи вертикальных стояков.
Схемы с горизонтальной разводкой можно также разделить на:
- Простые — с последовательным подсоединением радиаторов к подающей трубе и «обратке»;
- Лучевые или коллекторные — когда каждый радиатор подсоединяется отдельно с помощью двух труб к специальному распределителю (гребенке, коллектору). Он может быть отдельным для каждого этажа, размещенным в нише или шкафчике или же быть общим для всего дома, размещенным в котельной.
Схемы с последовательным подсоединением радиаторов могут быть как с нижней, так и с верхней разводкой подающей трубы. Коллекторные же или лучевые схемы, как правило, предполагают нижнюю разводку труб, причем, очень часто, те прокладываются скрыто, под полом.
Кроме этого, схемы двухтрубных систем отопления двухэтажных домов могут отличаться способом обеспечения циркуляции теплоносителя. Такая циркуляция может быть:
- Гравитационной или естественной – когда она обеспечивается только разностью удельного веса горячего и холодного теплоносителя и наличием уклонов магистральных трубопроводов;
- Принудительной – когда для этого используется специальный циркуляционный насос (или насосы);
- Комбинированной – когда система имеет возможность работать и по той и по другой схеме, в зависимости от обстоятельств.
В зависимости от вида расширительного бака и способа создания избыточного давления в системе она может быть:
- Открытой – когда используется открытый расширительный бак, обычно располагающийся под потолком на втором этаже или на чердаке, а давление в системе определяется только высотой его размещения. Часто такой бак используется и в качестве центрального воздухосборника (как на рис. 1). Это возможно в случае, если его подсоединяют к наивысшей точке подающей трубы. Если же он подсоединяется к обратной трубе (например, при установке на «обратке» циркуляционного насоса), то на подающей трубе дополнительно необходимо устанавливать воздухосборник или воздушный клапан;
- Закрытой – когда в качестве расширительного используется герметичный мембранный бак. Избыточное давление в таких системах рассчитывается и обычно находится на уровне 1,5 бар (0,15 МПа). Такой бак может быть расположен в любом месте на подающей или обратной магистрали, но чаще всего его располагают недалеко от котла. Обязательным атрибутом закрытой системы является наличие, так называемого «блока безопасности», включающего предохранительный и воздушный клапаны и манометр, так как возникает необходимость контроля избыточного давления жидкости и автоматического сбрасывания в случае его увеличения выше установленного безопасного уровня.
Пример закрытой системы отопления двухэтажного дома
Ознакомившись с основными видами и особенностями двухтрубных систем отопления, рассмотрим их некоторые, наиболее распространенные схемы, которые могут использоваться для частного двухэтажного дома.
Состав и принцип работы системы
Все системы отопления частного дома с естественной циркуляцией теплоносителя рассчитаны на небольшие протяженности трубопроводов – не больше 25-35 м в одну сторону.
Состав системы отопления частного дома с естественной циркуляцией теплоносителя включает следующие элементы:
- котел, как правило, твердотопливный;
- трубопроводы: в зависимости от может быть один или два трубопровода – подающий и обратный;
- отопительные радиаторы;
- расширительный бачок.
На первом рисунке видна взаимосвязь всех перечисленных выше компонентов.
Изображение 2. Схема возникновения циркуляционного напора.
В котле сгорает топливо (дрова, брикет и так далее). По подающему трубопроводу нагретый теплоноситель доставляется до радиаторов. Здесь теплоноситель отдает часть своего тепла в окружающую среду. Посредством обратного трубопровода остывший теплоноситель попадает обратно в котел. Расширительный бачок нужен для непрерывной подачи теплоносителя в систему отопления.
Такой цикл повторяется постоянно. Теплоноситель двигается за счет создаваемого давления. Его создает расширительный бачок. Давление воды создается за счет атмосферного давления, так как расширительный бачок находится выше всех остальных элементов системы отопления частного дома. Именно по этой причине такие системы называются системами с естественной циркуляцией.
работают по такому же принципу, только в них существуют еще и вертикальные трубопроводы, которые называются стояками.
Вода течет по ним за счет давления, в образовании которого принимают участие сразу три фактора:
- давление за счет расширительного бачка;
- давление за счет расширения теплоносителя вследствие его нагревания;
- давление за счет действия холодного, более тяжелого теплоносителя.
Вода, сильно нагреваясь от котла, поднимается по стояку, а потом вытесняется более тяжелой холодной водой. Дальше вода растекается по горизонтальному трубопроводу. Эти движения происходят только за счет указанных выше составляющих общего давления, то есть самотеком. Таким же образом вода поступает обратно.
Схема разводящего трубопровода горячей и холодной воды.
Кроме того, наклон трубопроводов способствует удалению воздушных подушек через расширительный бачок. Это происходит по той причине, что воздух легче воды, поэтому стремится попасть в самую верхнюю точку – расширительный бак.
Расширительный бак имеет и другое предназначение – забирать нагретую воду, объем которой при нагревании увеличивается, при остывании вода возвращается обратно.
Если говорить кратко, то принцип действия движения воды такой: вода поднимается по стояку вследствие нагревания, а также под воздействием давления. Циркуляция теплоносителя обуславливается разностью между двумя плотностями – нагретой и остывшей воды.
Несмотря на наличие давления, хоть и небольшого, движение воды не имеет большой скорости. Это связано с тем, что расходуется на преодоление сопротивления, которое возникает в результате трения воды о внутренние стенки труб. Особенно большое сопротивление теплоноситель испытывает в местах поворота трубы, в местах прохода через водопроводную арматуру и так далее.
В общем смысле скорость движения теплоносителя, то есть ее напор, зависит от многих факторов:
- от разности двух высот – высоты центра котла и высоты центра отопительного радиатора. Чем больше эта разность, тем быстрее движется вода в системе отопления двухэтажного частного дома с естественной циркуляцией;
- от разности плотностей холодной и горячей воды – чем выше температура, тем меньше ее плотность, а соответственно, и разность больше.
Варианты отопительных разводок
1. Лучевая система
Это трубопровод с вмонтированными коллекторами и дроссельными заслонками возле каждого отвода. К каждой батарее идёт пара трубок, идущих от каждого отвода. Тепло регулируется довольно-таки легко, но при инсталляции возникают осложнения: необходимо прятать в бетонной стяжке пола или под фальшстенами десяток труб.
Коллекторная (лучевая) схема отопления одноэтажного дома:

Монтаж такой системы выльется в круглую сумму. Зато она самая эффективная в плане экономии тепла.
2. Двухтрубная схема отопления
Во всём доме, по периметру или под полом, тянутся два трубопровода – подачи и обратки. Батареи, фанкойлы, конвекторы, — всё это играет роль перемычек и создаёт подобие короткого замыкания. Вода циркулирует от ближней батареи к дальней. Поэтому дроссельные заслонки будут ограничивать проходящую через батареи горячую воду. Для равномерного тепла в каждой комнате необходимо тонко балансировать систему.
Двухтрубная схема отопления одноэтажного дома:

- большой расход трубы и материалов;
- без балансировки происходит замерзание труб и батарей.
3. Однотрубная схема отопления дома
Считается самой простой. Иногда её называют, по старинке, «ленинградкой». При монтаже такой системы по периметру всего дома и во всех жилых помещениях укладывают трубу на 25-32-40 мм. Почему обязательно в жилых комнатах? Всё просто: паразитное тепло, которое выделяется трубой, тоже будет обогревать всю комнату.
Однотрубная схема отопления одноэтажного дома:

Или вот схема отопления одноэтажного частного дома в одноконтурном варианте:

Радиаторы и конвекторы врезаются для закольцовки, но с использованием трубы двадцатки. На всех подводах устанавливаются дроссельные заслонки и краны. Первые уравнивают температуру, а другие — выпускают воздух. Если бы не было вентилей (кранов), то вода вытеснила бы воздух в верхнюю часть отопительного элемента. А это, в свою очередь, делает меньше количество отдаваемого тепла.
- тепло практически не теряется;
- простота и быстрота монтажных работ;
- экономное использование;
- при отсутствии электричества, отключающее циркуляционный насос, движение воды не остановится;
- экономия материалов.
Так какую же систему отопления выбрать в одноэтажном доме? Можно отметить лишь один, но существенный факт, который повлияет на ваш выбор – возможность устанавливать любую из перечисленных схем в одноэтажных домах и коттеджах: лучевая, однотрубная, двухтрубная, электрическая, воздушная и даже систему «водяного пола».
О последних трёх мы не упоминали, но они также популярны последнюю систему («тёплый пол») пару лет назад использовали только в саунах, но сегодня её относят к полноценному виду отопительных систем, которые полноценно обеспечивает теплом весь дом.
К причинам, повлёкшим выбор той или иной системы, можно отнести и площадь дома, и срок проживания (постоянный или временный), и из чего построен дом (кирпич, блок или деревянный брус).
























































