Как сделать пиролизный котёл своими руками
Технологический процесс изготовления котла пиролизного принципа действия включает выполнение слесарных и сварочных работ.
Необходимые материалы и инструмент
Для изготовления качественного агрегата необходим опыт в работе со следующими инструментами:
- аппарат электросварочный;
- дрель электрическая;
- угловая шлифмашина;
- набор слесарных инструментов — угольник, уровень.
Потребуются материалы и комплектующие:
металл:
- листовой, толщина 4 мм, 7,5 м²;
- труба — 8 м (диаметр 57 мм, толщина стенки 3,5 мм);
полоса сталь (толщина 4 мм, ширина 20 мм) — 7,5 мп;
полоса сталь (толщина 4 мм, ширина 30 мм) — 1,5 мп;
полоса сталь (толщина 5 мм, ширина 80 мм) — 1 мп;
шамотный (огнеупорный) кирпич — 15 шт;
профтруба 60×30 (толщина стенки 2 мм) — 1,5 мп;
профтруба 80×40 (толщина стенки 2 мм) — 1 мп;
круг отрезной d 230 — 10 шт.;
круг шлифовальный d 125 — 5 шт.;
электроды — 5 пачек;
датчик температуры.

Температурный датчик — это механическое устройство контроля количества воздуха, проходящего в камеру сгорания.
Продуктивность работы котла зависит от функционирования дымоотводящей трубы. Для обеспечения хорошей тяги дымоотвод должен соответствовать требованиям качества:
- высота не меньше 5 метров;
- хорошее утепление;
- отсутствие резких изгибов;
- отвод конденсата;
- простой доступ для чистки.
Чертежи и схемы устройства
Пиролизный котёл без принудительной вентиляции имеет наиболее простую схему. Энергонезависимость конструкции удешевляет эксплуатацию агрегата.
Схема пиролизного котла с естественным дымоотводом имеет вид:

Котёл состоит из трёх основных камер:
- загрузочная, служащая для заброса топлива;
- камера дожига, куда подаётся вторичный воздух;
- теплообменник, выходящий в трубу.
Горение сырья направляет поток газа сверху вниз. При подаче воздуха под колосники в массив шамотного кирпича происходит дожиг горючих газов. Продукты распада уходят через теплообменник в дымоотвод. Регулировка тяги выполняется термодатчиком на выходе из котла с помощью цепочки, связанной с заслонкой подачи вторичного воздуха.
Подробную деталировку с размерами и допусками можно взять в стандартном чертеже:
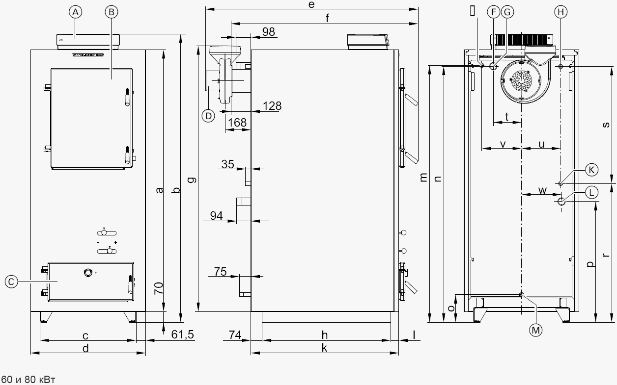
A — контроллер контура котла; B — дверца загрузки; C — крышка зольника; D — дымоотвод; E — муфта для датчика температурного предохранителя; F — патрубок предохранительного клапана; G — подающая магистраль контура; H — подвод холодной воды в теплообменник; L — обратная магистраль контура котла; M — расширительный бак
Пошаговая инструкция изготовления агрегата
Изготовления пиролизного котла своими руками разделяется на этапы:
- Согласно чертежу выполняется разметка и нарезка деталей для корпуса. После «прихватывания» элементов производится контрольный замер, затем делаются сварочные швы. Установленные на свои места задняя панель и боковые стенки свариваются с двух сторон, зачищаются, обрабатываются сварочным герметиком.
- Производится монтаж труб теплообменника.
- После наваривания внешней стенки и обечаек дверок устанавливается механический регулятор контроля теплоносителя.
- Дымоход собирается наращиванием трубы Последующую часть нужно вставлять внутрь предыдущей, чтобы конденсат не попадал на внешнюю сторону. Готовая конструкция окрашивается огнеупорной краской.
Устройство отопительного котла
Простая конструкция пиролизного котла и его устройство основано на следующем: во время сжигания дров, лучшим из которых является древесина, они разлагаются. Благодаря этому происходит образование углей и горючего газа. Чтобы добиться этого процесса, внутри отделения необходимо создать достаточно высокую температуру, а также проследить, чтобы не было кислорода.
Это возможно сделать в специальном отсеке машины, в котором будет происходить горение древесины, а также газа, который выделяет этот вид топлива. В этом процессе практически отсутствует выделение сажи, наблюдается незначительное количество золы.

Устройство пиролизного котла
Оборудование котла на твердом топливе является достаточно эффективной установкой, так как кпд составляет до 85%. Причем параметры мощности пиролизного котла регулируются от 30% до 100%.
Схема, сборка и установка пиролизного котла своими руками довольно трудные, поэтому имеются свои преимущества и недостатки.
Меры безопасности!
Чтобы такой котел действительно был эффективным и экономичным вариантом отопления, прослужил долгую службу и не стал причиной ожогов или аварий в доме, учитывайте основные моменты противопожарной безопасности.

ТТ котел
- Необходимо следить за температурой в системе и не допускать его перегрева.
- Нельзя устанавливать запорный вентиль на трубопроводе.
- Рядом с котлом нельзя держать легко воспламеняющиеся предметы.
- Необходимо следить за вентиляции в помещении.
- Для котла нужно оборудовать отдельное помещение.
На этапе подготовительных работ, продумайте место, где будет установлен котел.
В идеале, конечно, оборудовать отдельную котельную, ведь эксплуатация ТТ котла длительного горения несколько отличается от привычной кирпичной печи на дровах. Да и внешне этот агрегат не будет радовать глаз, и служить украшением дома.
Учитывая, что твердое топливо все-таки создает определенную грязь, ТТ котел длительного горения лучше устанавливать нежилом помещении.
Но если его мощность небольшая (не превышает 30-35 кВт), то можно просто отделить (зонировать) основное помещение от «котельной» с помощью кирпичной стенки.
Обязательно предусмотрите систему вентиляции в помещении, где будет происходить эксплуатация этим котлом. На постоянной основе с улицы должен поступать кислород.
Принцип работы пиролизных котлов и их особенности
Создавая пиролизные котлы своими руками, люди стремятся сэкономить денежные средства в своем кошельке. Если газовое оборудование стоит довольно дешево, то твердотопливные агрегаты просто поражают своей ценой. Более-менее приличная модель мощностью 10 кВт обойдется в 50-60 тысяч рублей – дешевле провести газ, если рядом проходила бы газовая магистрально. Но если ее нет, то выходов два – приобретать заводское оборудование или делать его самостоятельно.
Изготовить пиролизный котел длительного горения своими руками можно, но сложно. Давайте для начала разберемся, для чего вообще нужен пиролиз. В обычных котлах и печах дрова сгорают традиционным способом – при высокой температуре, с выбросом продуктов сгорания в атмосферу. Температура в камере сгорания составляет порядка +800-1100 градусов, а в дымоходе – до +150-200 градусов. Таким образом, солидная часть тепла просто улетает наружу.
Прямое сгорание дров применяется во многих отопительных агрегатах:

Твердотопливные пиролизные котлы могут использовать несколько видов топлива, в том числе отходы деревообрабатывающего производства и сельскохозяйственной переработки.
- Твердотопливные котлы;
- Печи-камины;
- Камины с водяными контурами.
Главным преимуществом данной методики является то, что она отличается простотой – достаточно создать камеру сгорания и организовать отвод продуктов сгорания за пределы оборудования. Единственным регулятором здесь становится дверка поддувала – регулируя просвет, мы можем отрегулировать интенсивность горения, тем самым воздействуя на температуру.
В пиролизном котле, собранном своими руками или купленном в магазине, процесс сгорания топлива идет несколько по-другому. Дрова здесь сгорают при низкой температуре. Можно сказать, что это даже не горение, а медленное тление. Древесина при этом превращается в подобие кокса, одновременно выделяя горючие пиролизные газы. Эти газы отправляются в камеру дожигания, где сгорают с выделением большого количества тепла.
Если вам кажется, что данная реакция не даст особого эффекта, то вы глубоко заблуждаетесь – если заглянуть в камеру дожигания, то здесь будет видно ревущее пламя ярко-желтого, почти белого, цвета. Температура сгорания – чуть выше +1000 градусов, а тепла в этом процессе выделяется больше, чем при стандартном горении древесины.
Для того собранный своими руками пиролизный котел смог показать максимальную эффективность, необходимы дрова с низким содержанием влаги. Влажная древесина не даст оборудованию выйти на полную мощность.
Реакция пиролиза знакома нам еще со школьного курса физики. В учебнике (а может и в лабораторном кабинете) многие из нас видели интересную реакцию – древесина помещалась в стеклянную запечатанную колбу с трубкой, после чего колба нагревалась над горелкой. Через несколько минут древесина начинала темнеть, а из трубки начинали выходить продукты пиролиза – это горючие газы, которые можно было поджечь и понаблюдать за желто-оранжевым пламенем.
Аналогичным образом работает и пиролизный котел, собранный своими руками:

На одной загрузке топлива пиролизные котлы работают около 4-6 часов. Так что большим и стабильно пополняемым запасом дров стоит озаботиться заранее.
- В топке разжигаются дрова до появления устойчивого пламени;
- После этого доступ кислорода перекрывается, пламя гаснет почти полностью;
- Запускается дутьевой вентилятор – в камере дожигания появляется высокотемпературное пламя.
Устройство пиролизного котла довольно простое. Основными элементами здесь являются: камера сгорания, в которой складированы дрова, и камера дожигания, в которой сгорают продукты пиролиза. Передача тепла в отопительную систему осуществляется через теплообменник
В схеме пиролизного котла ему уделяется особое внимание
Все дело в том, что теплообменники в пиролизных котлах, собранных своими руками, устроены не так, как в газовом оборудовании. Продукты сгорания с воздухом проходят здесь через множество металлических труб, омываемых водой. Для увеличения эффективности котловая вода омывает не только сам теплообменник, но и все другие узлы – здесь создается своего рода водяная рубашка, которая отбирает излишки тепла от раскаленных элементов котельного агрегата.
Особенности изготовления пиролизного котла
Материалы
Корпус пиролизного котла лучше делать из листовой стали (от 2 мм, в зависимости от расчетной мощности). Модели котлов, которые собираются из толстостенной трубы, вряд ли подходят для организации отопления частного дома. В основном такими установками обогреваются различные подсобки, гаражи или времянки.
Более габаритные пиролизные котлы монтируются по образцу большинства теплогенераторов – прямоугольной формы. В некоторых случаях, если модель мощная, ее стенки (изнутри) целесообразно выложить шамотным кирпичом.
Размеры пиролизных котлов
Один из самых интересных и «таинственных» вопросов по данной теме. Все расчеты делаются применительно к конкретному дому, его отопительной системе, со всеми ее нюансами, схемами и так далее. Автор не будет приводить математических выкладок и просит поверить на слово. Проектирование пиролизного котла лучше поручить специалисту. Разработка документации стоит денег, но в любом случае это обойдется дешевле приобретения установки промышленного изготовления.
А если учесть, что ошибки в расчетах повлекут дополнительные расходы (и весьма ощутимые), связанные с разного рода переделками и модернизациями, то целесообразность именно такого решения более чем очевидна.
Специфика эксплуатации пиролизных котлов
Без знания некоторых нюансов использования такого оборудования приниматься за изготовление подобной модели теплогенератора не имеет смысла.
Довольно «жесткие» критерии влажности сжигаемого топлива. Например, для дров максимальное значение – 33±2%. С чем это связано? Повышение температуры инициирует испарение влаги, содержащейся в продукте. Естественно, пар начнет смешиваться с пиролизными газами и негативно влиять на интенсивность процесса горения. Применение влажного топлива резко снижает КПД установки.
Не все разновидности твердого топлива подходят для сжигания в пиролизных котлах. С учетом специфики их работы, можно использовать лишь материалы, характеризующиеся высоким газообразованием при сгорании. Недостаток летучих веществ сказывается на эффективности эксплуатации пиролизных моделей. Проще говоря, дров расходуется много, а толк минимальный.
В заключение можно указать, что самая дешевая модель (причем небольшой мощности) стоит в пределах 48 000 рублей. В заключение можно указать, что самая дешевая модель (причем небольшой мощности) стоит в пределах 48 000 рублей. И еще не факт, что такой пиролизная установка полностью устроит хозяина. Например, габаритами в соответствие с выбранным местом для монтажа. Если подумать, то изготовление пиролизного котла своими руками, по индивидуальным чертежам – неплохое решение проблемы отопления частного дома, особенно если невозможно его подключение к магистрали газоснабжения.
Варианты самостоятельной сборки
Пиролизная печь из металлической бочки
Самодельные конструкции могут быть выполнены из различных материалов, таких как газовый баллон, консервные банки, бочки, кирпичи и многое другое.
В зависимости от материала производства, все печи условно делятся на:
- каменные;
- металлические.
Каменные или кирпичные печи используются крайне редко. Это связано с тем, что для ее сооружения понадобится немало капиталовложений и времени.
Конечно, за последнее время такие конструкции прошли некоторые модификации, что позволило значительно увеличить их эффективность. Что касается металлических печей, то они пользуются особой популярностью. Дело в том, что их можно изготовить даже из старого газового баллона или бочки.
Пиролизная печь Лачинянка
В зависимости от принципа работы, используемого топлива и материала все печи делятся на такие виды:
- печь, работающая на обработанном масле;
- печь Кузнецова;
- Лачинянка;
- печь Булерьян;
- Бубафоня.
Принцип работы всех этих конструкций один – дожигание газа, который выделяется из топлива. Но, при выборе конструкции стоит учесть некоторые особенности каждого вида.
Так, печи, которые работают на отработанном масле, нежелательно использовать в бане и других жилых помещениях. Они оптимально подойдут для отопления гаража и других нежилых помещений.
Конечно, стоит учесть, что небольшие печи, работающие на отработанном масле, обладают высокой продуктивностью. Для работы понадобится всего лишь кружка масла.
Возможно, Вам будет интересна статья о том, как сделать пиролизный котел своими руками.
Обзор современных моделей пиролизных котлов для отопления читайте здесь.
Из кирпича
Для строительства кирпичной печки понадобится:
Чертеж пиролизной печи. (Для увеличения нажмите)
керамический и шамотный кирпич;
стальные листы;
чугунные колосники;
вентилятор мощностью 300 Вт;
дверка в топочную и для поддувала;
сварочный аппарат;
дрель;
болгарка и другие.
Имея под рукой такие материалы и инструменты, можно соорудить печь своими руками. Конечно, не стоит забывать о некоторых нюансах, от которых будет зависеть прочность и эффективность работы отопительной конструкции.
Если вы остановили свой выбор на кирпичной печи, то процесс сооружения будет выглядеть так:
- Расчистка места и установка фундамента. Оптимальным вариантом станет ленточный фундамент. Он должен обладать высокой прочностью.
- После того, как фундамент застынет, можно приступать к кладке кирпича. Для этого используют высококачественный огнеупорный кирпич, который обладает высокой прочностью.
- Внутри печь выкладывается шамотным кирпичом, который выдерживает высокие температуры.
- Установка дымохода. Лучше всего здесь использовать металлические вставки или же керамические конструкции.
Имейте в виду: к кладке дымохода нужно подойти с большой ответственностью и лучше заранее проконсультироваться с профессионалом печного хозяйства.
Все работы проводятся согласно предварительно начерченному плану, который лучше согласовать со специалистом.
При необходимости можно провести декорирование конструкции. Для этого часто используют облицовочный кирпич, камень и другие материалы, которые способны выдерживать большие температуры.
Из газового баллона
Особенность печи Бубафоня заключается в том, что она может использоваться на разном топливе.
Чтобы изготовить такую конструкцию собственными руками, понадобятся инструменты:
- молоток;
- болгарка;
- сварочный аппарат и электроды;
- пассатижи.
Процесс изготовления печи Бубафоня проводится в такой последовательности:
- Срезать верхнюю выпуклую часть баллона.
Будьте внимательны: срезайте верхнюю часть баллона ниже или выше сварочного шва, так как соединительный шов изнутри укреплен металлической пластиной, что может усложнить распил.
В центре устраивается отверстие для воздуховода.
Вверху корпуса баллона, делается отверстие для дымохода.
Изготовить газорассекатель с трубой, через которую во вторую камеру будет подаваться кислород.
Приварить дымоход.
Как видно, изготовить печь из газового баллона можно легко своими руками
Но стоит особое внимание уделить резке баллона. Перед тем как приступать к работе с болгаркой, необходимо увериться в том, что в баллоне нет остатков газа, для этого баллон полностью заполняют водой
Как сделать пиролизный котёл своими руками пошаговая инструкция и чертежи

Как и из чего своими руками собрать пиролизный котёл для бытового использования своими руками – тема предлагаемой статьи-инструкции.
Принцип работы пиролизных котлов
Высокая эффективность, следовательно, экономичный расход топлива в подобных установках достигается разделением камеры сгорания на 2 отсека. Конструктивных исполнений пиролизных печей несколько. Например, такое.

Верхняя камера. В нее производится загрузка топлива и его горение. Особенность в том, что необходимо обеспечить недостаток кислорода. При таком условии замедляется процесс разложения продукта, а по сути, происходит лишь его обугливание (экономичность расходования!) и инициируется повышенное газообразование. Собственно, это и есть то, что называется пиролизом.
Нижняя камера. В нее поступают летучие вещества из 1-го отсека, которые за счет дополнительной подачи воздуха сгорают, выделяя тепло. Лишь незначительная часть его тратится на поддержание процесса пиролиза, а все остальное идет на нагрев теплоносителя.

Рисунок хорошо иллюстрирует основные рабочие циклы пиролизного котла.

В некоторых моделях камеры располагаются на одном уровне.

Собственно, дело не в инженерном решении, а в сборке установки, в которой можно реализовать пиролизный процесс, то есть обеспечить длительное горение топлива. А выбор конкретной схемы – на усмотрение мастера.
Особенности изготовления пиролизного котла
Материалы
Корпус пиролизного котла лучше делать из листовой стали (от 2 мм, в зависимости от расчетной мощности). Модели котлов, которые собираются из толстостенной трубы, вряд ли подходят для организации отопления частного дома. В основном такими установками обогреваются различные подсобки, гаражи или времянки.

Более габаритные пиролизные котлы монтируются по образцу большинства теплогенераторов – прямоугольной формы. В некоторых случаях, если модель мощная, ее стенки (изнутри) целесообразно выложить шамотным кирпичом.

Размеры пиролизных котлов
Один из самых интересных и «таинственных» вопросов по данной теме. Все расчеты делаются применительно к конкретному дому, его отопительной системе, со всеми ее нюансами, схемами и так далее. Автор не будет приводить математических выкладок и просит поверить на слово. Проектирование пиролизного котла лучше поручить специалисту. Разработка документации стоит денег, но в любом случае это обойдется дешевле приобретения установки промышленного изготовления.
Специфика эксплуатации пиролизных котлов
Без знания некоторых нюансов использования такого оборудования приниматься за изготовление подобной модели теплогенератора не имеет смысла.
Довольно «жесткие» критерии влажности сжигаемого топлива. Например, для дров максимальное значение – 33±2%. С чем это связано? Повышение температуры инициирует испарение влаги, содержащейся в продукте. Естественно, пар начнет смешиваться с пиролизными газами и негативно влиять на интенсивность процесса горения. Применение влажного топлива резко снижает КПД установки.
Не все разновидности твердого топлива подходят для сжигания в пиролизных котлах. С учетом специфики их работы, можно использовать лишь материалы, характеризующиеся высоким газообразованием при сгорании. Недостаток летучих веществ сказывается на эффективности эксплуатации пиролизных моделей. Проще говоря, дров расходуется много, а толк минимальный.
В заключение можно указать, что самая дешевая модель (причем небольшой мощности) стоит в пределах 48 000 рублей. В заключение можно указать, что самая дешевая модель (причем небольшой мощности) стоит в пределах 48 000 рублей. И еще не факт, что такой пиролизная установка полностью устроит хозяина. Например, габаритами в соответствие с выбранным местом для монтажа. Если подумать, то изготовление пиролизного котла своими руками, по индивидуальным чертежам – неплохое решение проблемы отопления частного дома, особенно если невозможно его подключение к магистрали газоснабжения.
Инструкция по эксплуатации
Подачу воздуха можно производить двумя основными способами: методом нагнетания или вытяжным способом (применение дымососа). Использование нагнетательного варианта позволяет регулировать мощность потока, что позволяет контролировать интенсивность горения, процесс перехода от тления до выдачи максимальной мощности за короткий промежуток времени.

Что касается дымососов, то на сегодняшний день выпускают такие конструкции, которые могут обеспечить вакуумную тягу, способную проводить процесс пиролиза без тепловых потерь.
Наиболее экономичный режим работы котла – это когда происходит нагрев воды до 60 °C. Если соблюдать все условия, то такая температура достигается уже по истечении 30-40 минут.
Нормальное функционирование системы отопления напрямую зависит от влажности дров. Не рекомендуется использовать дрова с влажностью выше 50 %. Самой оптимальной считается влажность дров, равная 25-30 %. Для того, чтобы добиться такого процента влажности, необходимо сушить дрова длительный период на проветриваемых площадках, в специальных дровяниках, сараях (в зависимости от первоначальной влажности и породы дерева).
При использовании дров, имеющих влажность 15-20 %, по сравнению с 50 % влажностью, мощность увеличивается примерно в 2 раза. Однако в естественных условиях получить такую влажность довольно непросто. Это займет примерно 1,5-2 года. Поэтому сразу же после окончания сезона отопления необходимо приступить к заготовке дров.
Основные элементы
Для примера возьмем готовую схему котла Беляева с мощностью 40 кВт. Она содержит следующие основные элементы:
- Контроллер для контура котла.
- Дверца, предназначенная для загрузки топлива.
- Крышка зольника.
- Дымосос.
- Муфта для датчика предохранителя температуры.
- Патрубок для аварийной линии.
- Подающая магистраль.
- Подвод в защитный теплообменник холодной воды.
- Подвод в защитный теплообменник горячей воды.
- Обратная магистраль.
- Патрубок опорожнения и расширительный бак.
Безусловно, имея опыт и некоторые инженерные познания, можно без проблем изменить конструкцию котла. Схема подключения пиролизного котла может видоизменяться на ваше усмотрение. Однако работы выполнять нужно таким образом, чтобы не нарушать размеры внутренней камеры.
Изготовление пиролизных печей
Решая, как смастерить пиролизную печь своими руками, необходимо учитывать площадь и тип обслуживаемого пространства. Работы выполняются на основе чертежей, для создания которых необходимо определить размеры и форму корпуса, уточнить тип расположения отсека для закладки твердого топлива и камеры дожигания газов.
Материалы и инструменты
Для изготовления металлической установки пиролизного горения следует собрать следующий набор подсобных материалов и инструментов:
- стальные листы толщиной в 3-4 мм марки Ст20;
- уголки стальные 50 мм – 4 шт;
- труба d50;
- арматурные элементы;
- трубы для дымохода d120;
- кирпичи – 15 шт;
- электросварочный аппарат плюс электроды;
- электродрель, болгарка;
- молоток, строительный уровень, рулетка, маркер.

Для изготовления металлической установки пиролизного горения следует не забыть про болгарку При выборе материалов для самостоятельного изготовления газогенератора стоить отдать предпочтение качественным и надежным ресурсам, от этого зависит эффективность устройства и безопасность эксплуатации.
Чертежи и расчеты
Чертеж изделия можно сделать самостоятельно, взяв за основу изображение выбранного агрегата. Далее, учитывая особенности устройства, проводят расчет необходимой мощности. Для этого сначала определяют требуемую мощность установки в режиме пламенного горения, далее вычисляют параметры при режиме газогенерации.
Далее рассчитывают объем топливной закладки, который необходим для обеспечения необходимой мощности. Для этого вычисляют массу топлива, учитывая, что ресурс сгорает только на 80%. При этом стоит помнить, что КПД самодельного очага пиролизного действия в среднем равен 50%.
В конце рассчитывают объем топки с учетом того, что коэффициент загрузки не должен превышать стандартное для этой отрасли значение 0,63.
Выбор и подготовка места
Выбирая место установки печной конструкции, следует учитывать, что пространство вокруг любого очага должно соответствовать требованиям пожарной безопасности:
- оформляется площадка-основа в виде платформы с ровной поверхностью из негорючих материалов;
- габариты основания должны быть больше, чем параметры возводимой конструкции;
- между агрегатом и стенами помещения выдерживается расстояние не менее 80 см;
- поверхности стен покрывают жаропрочными облицовочными материалами.
Для обеспечения безопасной эксплуатации поверхность пола не менее 1,2 м перед отопительным агрегатом укрепляется негорючим покрытием.
Изготовление и установка
Работы выполняются в следующем порядке:
- В начальном этапе делают необходимые заготовки в виде элементов для вертикальных стоек. Далее по ширине установки отмеряют горизонтальные компоненты, после чего детали каркаса сваривают. При изготовлении стенок в передней панели проделывают отверстия для топки и зольника, оснащают их крепежными элементами для установки навесных дверок. Для монтажа колосниковой решетки и поддона с перфорацией, разделяющей топочный отсек от камеры дожига, к внутренней поверхности крепят уголки.
- В боковую стенку необходимо врезать поддувало с заслонкой. Для этого из короткого отрезка трубы заготавливают поддувало, просверлив отверстие для оси заслонки. Из арматуры делают ось заслонки, к которой приваривают стальной диск, параметры которого соответствуют внутреннему диаметру поддувала.
- Начиная с днища, сваривают детали корпуса, далее укладывают колосниковую решетку с элементом перегородки. После чего приваривают крышку.
- В отверстие крышки вваривают отвод с углом поворота 90° для подключения корпуса к дымоходу. К отводу присоединяют боров – горизонтальный участок длиной 1 м. Он нужен для того, чтобы задерживать выход газов из камеры дожигания.

печи своими руками
3 Режимы работы и используемые защитные системы
Заводские модели котлов, работающих на щепе и опилках, оснащаются различными системами безопасности, которые предупреждают возгорание оборудования, а также его перегрев. Отдельные модели имеют также дополнительные датчики, которые регистрируют повышенное содержание угарного газа, способны обнаружить дым, тем самым предупреждая об опасности пожара.
Оборудование может работать сразу в нескольких режимах:
- Максимальная производительность.
- Средняя мощность.
- Режим паузы.

В режиме «Пауза» котел не нагревает помещение, а горение топлива прекращается или его интенсивность сводится к минимуму. В последующем домовладелец может быстро нагреть котел, переведя его в средний или максимальный режим работы.
Наличие режимов работы котла позволяет гарантировать удобство использования отопительного прибора, повышая безопасность его эксплуатации. При наличии автоматической системы управления домовладелец может по своему желанию устанавливать необходимую температуру теплоносителя, а встроенные датчики будут уменьшать или увеличивать интенсивность нагрева, обеспечивая комфорт проживания в частном доме.
Сооружение основания
Основание под печку Бубафоня закладывается таким образом:
- Первым делом выкапывается квадратная яма. Ее примерные размеры – 150х150 см, при глубине 20-30 см.
- Дно траншеи засыпается подушкой из щебня и заливается раствором бетона. Для выравнивания его поверхности пригодится мастерок. Когда залитый участок схватится, необходимо проверить горизонтальность его поверхности при помощи строительного уровня. Если нужно, проводится дополнительная корректировка.
- Поверх полностью высохшей бетонной подставки укладывается огнеупорный кирпич в несколько рядов. Обычно достаточно 2-3 слоев.
























































