Котлы верхнего горения
Один из вариантов пиролизного устройства – котел верхнего горения. Принцип действия этих двух агрегатов очень схож.
Точно так же в топку загружают большое количество твердого топлива низкой влажности, воздух нагнетают принудительно и обеспечивают тление топлива при пониженном количестве кислорода. Задвижку, которая регулирует поток кислорода, устанавливают в нужном положении.
Схема устройства котла верхнего горения. Топка такого котла имеет глухое дно, частички продуктов горения удаляются через дымоход (+)
Но котлы длительного горения не имеют ни зольника, ни колосника. Дно представляет собой глухую металлическую плиту. Такие котлы устроены так, чтобы древесина сгорала полностью, а оставшееся в топке малое количество золы выдувалось воздухом.
Такие устройства отличаются высоким КПД и также работают при температурах более 1000°С.
Основная особенность таких устройств – они действительно обеспечивают длительный срок работы при полной загрузке. Топливная камера в таких устройствах обычно выполнена в форме цилиндра.
В нее сверху загружают топливо, сверху же, по центру, нагнетается необходимый для горения воздух.
В котлах верхнего горения устройство для нагнетания воздуха – это подвижный элемент, который опускается вниз по мере прогорания дров
Таким образом осуществляется медленное тление верхнего слоя топлива. Топливо постепенно сгорает, его уровень в топке понижается. Одновременно изменяется и положение устройства для подачи воздуха в топку, этот элемент в таких моделях подвижен и он практически лежит на верхнем слое дров.
Второй этап горения осуществляется в верхней части топки, которая отделена от нижнего отделения толстым металлическим диском. Горячие пиролизные газы, образовавшиеся в результате сгорания топлива внизу, расширяются и перемещаются вверх.
Здесь они смешиваются с воздухом и сгорают, дополнительно передавая теплообменнику солидную порцию тепловой энергии.
Балка, удерживающая диск, который разделяет камеру сгорания на две части, как и сам этот диск, в процессе работы котла верхнего сгорания постоянно находится под воздействием высокой температуры. Со временем эти элементы сгорают, их придется периодически заменять.
На выходе из второй части топливной камеры обычно установлен регулятор тяги. Это автоматический прибор, который определяет температуру теплоносителя и в зависимости от полученных данных регулирует интенсивность движения горючего газа. Он защищает устройство от возможного перегрева.
Стоит отметить, что наружный теплообменник в таких котлах реагирует на изменение скорости циркуляции жидкости в теплообменнике, т.е. на колебания температуры. На поверхности устройства сразу же образуется слой конденсата, который вызывает коррозию, особенно если речь идет о стальных котлах.
Предпочтительнее брать устройство из чугуна, которое значительно лучше сопротивляется подобному воздействию.
Хотя топливо в пиролизных котлах длительного горения должно сгорать без остатка, на практике так бывает не всегда. Порой пепел спекается, образуя частички, которые трудно удалить с помощью потока воздуха.
Если в топке накопится большое количество таких остатков, может наблюдаться заметное снижение тепловой отдачи агрегата. Поэтому котел верхнего горения следует периодически все же прочищать.
Особенность устройств этого типа в том, что по мере сгорания топлива его можно догружать, не дожидаясь сгорания всей закладки топлива. Это удобно, когда нужно избавиться от горючего бытового мусора.
Существуют также разновидности котлов верхнего горения, которые работают не только на древесном топливе, но и на угле. Сложные узлы автоматического управления в пиролизных котлах этого типа отсутствуют, поэтому серьезные поломки наблюдаются крайне редко.
Конструкция котла верхнего горения позволяет загружать топку лишь частично, если это необходимо. Однако в этом случае выполнить розжиг верхнего слоя топлива может быть не просто. Само топлива должно быть подсушенным, дрова из открытой поленницы для такого котла не подходят.
Топливо крупных фракций также не следует использовать для этого вида техники, т.е. дрова придется обязательно колоть на небольшие части.
№1. Коротко о принципах работы
Казалось бы, что сложного в твердотопливном котле? Закинул дрова или уголь в топку, они сгорели, нагрели воду, и дом наполнился теплом. В целом, все так и есть, но принцип работы устройства несколько сложнее. В конструкции современного твердотопливного котла можно выделить такие основные элементы:
- топка;
- система циркуляции теплоносителя;
- система удаления дыма;
- система безопасности;
- система аккумуляции тепла.
В топку подается топливо и сжигается для получения теплоты. Это в классическом варианте. Есть пиролизные котлы, в которых твердое топливо (дрова) тлеет, выделяя газ, который потом сгорает, обеспечивая выделение тепла. КПД при этом несколько возрастает, но с особенностями работы классических и пиролизных котлов разберемся позже.

Топка представляет собой большую емкость с двойными стенками, между которыми находится теплоноситель. Это в большинстве случае вода, реже используется незамерзающая жидкость или смесь воды и антифриза. Теплоноситель получает тепло от сгоревшего топлива, циркулирует по трубам и радиаторам, нагревая воздух в доме. Остывая, вода вновь возвращается в котел и все повторяется. Часто для улучшения циркуляции используют специальные насосы.
При сжигании топлива образуется не только теплота, но и газы, которые необходимо выводить. Для этого предназначена система удаления дыма. Дымоход отводит газы от котла на улицу, иногда для повышения эффективности этого процесса используется система принудительной вентиляции.

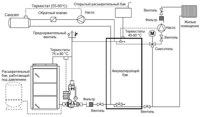
Самая большая опасность, которая может случиться при работе твердотопливного котла, — это перегрев теплоносителя. Вода уже может быть достаточно нагрета, а котел будет продолжать вырабатывать тепло. Если вода закипит, отопительная система может не выдержать, особенно если в доме установлены достаточно чувствительные к высоким температурам металлопластиковые трубы. Остановить сгорание дров или угля практически невозможно – остается только уменьшать интенсивность, а чтобы в систему не попал перегретый теплоноситель, используют охлаждающий теплообменник. В него поступает холодная вода из водопровода, но на случай отключения воды лучше всегда иметь достаточный ее запас.
Охлаждающий теплообменник может быть встроен в котел или находиться между котлом и остальной системой отопления. Встроить его можно только в конструкцию стального котла. Работает он одним из двух возможных способов:
- первый вариант – охлаждение разогретого теплоносителя, который проходит через охлаждающий теплообменник. Холодная вода в охлаждающий теплообменник подается через термоклапан, который открывается, когда температура теплоносителя достигает +950С. Процесс длится, пока теплоноситель не остынет до безопасной температуры;
- второй вариант предусматривает наличие отключающего клапана. Если температура воды повышается до критических значений, клапан не позволяет ей поступать в трубы. В систему теплоснабжения подается холодная вода из водопровода, а перегретый теплоноситель сливается в канализацию. Правда, давление воды должно быть достаточным, а в ее составе не должно быть повышенного количества солей, которые спровоцируют образование накипи.

Сливать нагретую воду в канализацию – не очень умно и экономно, поэтому конструкцию твердотопливного котла лучше дополнить баком-аккумулятором. Это буфер между котлом и остальной системой отопления, благодаря которому реализовывается ряд важных функций:
- накопление теплой воды для дальнейшего ее использования, а это экономия топлива, комфорт, стабильность в поддержании температуры и снижение количества походов к топке для подбрасывания топлива;
- защита от аварий. В баке перегретая вода смешивается с теплой;
- возможность использовать котлы разного типа. Бак-аккумулятор будет общим для твердотопливного и, например, газового или электрического котла, позволит просто организовать единую систему теплообеспечения дома и подстраховать себя несколькими источниками тепла.

Как сделать своими руками котел твердотопливный длительного горения: чертежи и схемы конструкций
Перед тем, как начать изготовление котла, необходимо определиться с его конструкцией. Ее выбор зависит от назначения агрегата. Если он предназначен для отопления небольшого хозяйственного помещения, гаража или дачного домика, то делать в нем водяной контур не обязательно. Обогрев такого помещения будет происходить непосредственно от поверхности котла, путем конвекции воздушных масс в помещении, как от печи. Для большей эффективности можно устроить принудительное обдувание агрегата воздухом при помощи вентилятора. При наличии системы жидкостного отопления в помещении, необходимо предусмотреть устройство в котле контура в виде змеевика из трубы или другой аналогичной конструкции.
Котел твердотопливный: фото, особенности, устройство, схема обвязки: (прочитать подробнее)
Схема подключения твердотопливного котла к системе отопления.
Выбор варианта зависит и от типа твердого топлива, которое нужно будет использовать. Для отопления обычными дровами требуется увеличенный объем топки, а для применения мелких топливных гранул можно устроить специальную емкость, из которой гранулированное топливо подается в котел автоматически. Для изготовления котла твердотопливного длительного горения своими руками, чертеж можно взять и универсальный. Он подойдет для любого вида используемого твердого топлива.Схема подключения твердотопливного котла к системе отопления
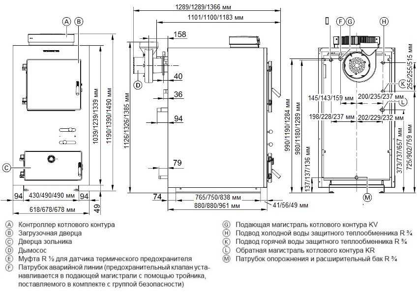
Чертеж твердотопливного котла длительного горения мощностью 25/30/40 кВт.
Расскажем пошагово, каким образом и из каких деталей можно сделать котел отопления на твердом топливе длительного горения по предложенной схеме:
- подготовим место, где будет установлен будущий агрегат. Основание, на котором он будет стоять, должно быть ровным, прочным, жестким и огнеупорным. Лучше всего для этого подойдет бетонный фундамент или толстая чугунная либо стальная плита. Стены нужно обить тоже огнеупорным материалом, если они деревянные;
- собираем весь необходимый материал и инструменты: из которых нам понадобиться аппарат для электродуговой сварки, болгарка и рулетка. Из материалов: листовая 4-мм сталь; 300 – мм стальная труба со стенками 3 мм, а также другие трубы 60 и 100 мм диаметром;
Строение и принцип работы твердотопливного котла.
- для того, чтобы изготовить котел на твердом топливе длительного горения, нужно из большой 300 – мм трубы вырезать кусок длиной 1 м. Можно и немного меньше, если в этом есть необходимость;
- из стального листа вырезаем дно по диаметру трубы и привариваем его, снабдив ножками из швеллера длиной до 10 см;
- распределитель воздуха выполняем в виде круга из листа стали с диаметром на 20 мм меньшим, чем труба. В нижнюю часть круга приваривается крыльчатка из уголка с размером полки 50 мм. Для этого можно использовать и швеллер аналогичного размера;
- сверху в середину распределителя привариваем 60 – мм трубу, которая должна быть выше котла. В середине диска распределителя прорезаем отверстие по трубе, так, чтобы был сквозной туннель. Он нужен для подачи воздуха. В верхней части трубы врезается заслонка, которая позволит осуществлять регулировку подачи воздуха;
Схематическое изображение устройства котла, работающего на твердом топливе.
- в самой нижней части котла изготавливаем небольшую дверку, снабженную задвижкой и петлями, ведущую в зольник для удобства удаления золы. Сверху в котле прорезаем отверстие для дымохода и привариваем в это место 100 – мм трубу. Вначале она идет под небольшим углом вбок и вверх на 40 см, а потом строго вертикально вверх. Проход дымохода через перекрытие помещения должен быть защищен по правилам противопожарной безопасности;
- заканчиваем сооружение котла отопления на твердом топливе длительного горения изготовлением верхней крышки. В ее центре должно быть отверстие для трубы распределителя потока воздуха. Прилегание к стенкам котла должно быть очень плотным, исключающим попадание воздуха.
Чертеж с размерами для создания твердотопливного котла своими руками.
На заметку! Чтобы разжечь, изготовленный своими руками, котел твердотопливный длительного горения, чертеж которого был представлен выше, необходимо: снять крышку и поднять регулятор, заполнить котел топливом доверху и облить его горючей жидкостью, все поставить на место и бросить горящую лучину в трубу регулятора. Когда топливо разгорится, снизить поток воздуха до минимума, чтобы оно начало только тлеть. После этого произойдет возгорание пиролизного газа и котел запустится.
Котел длительного горения — вид в разрезе.
Отличия двухконтурного котла
Котел длительного горения может иметь не один контур, а два. Таким образом, он не только может отапливать помещение, но и греть воду для хозяйственных нужд. Такие агрегаты оборудованы теплообменником или водяной рубашкой — в этом отделе происходит нагрев воды.

Котел может работать по двухконтурной схеме
Встроенный в систему теплообменник может иметь проточную систему воды или в виде аккумулирующего бойлера. Для отопительной системы, естественно, теплообменник должен работать по проточному ппринципу, а вот для ГВС он может быть как проточным, так и бойлерным.
Для ГВС удобнее выбрать бойлер косвенного нагрева большого объема. Он позволит всегда иметь горячую воду, так как она постоянно будет подогреваться, и сохранять температуру даже после завершения топки в течение длительного времени.
Кроме водяного контура, конструкция котла ничем не отличается от обычных котлов, работающих по этому принципу.
Комбинированные котлы
Котлы, работающие только на твердом топливе, устанавливают в основном, в строениях, расположенных в районах, где недоступны другие виды энергоресурсов. Если же есть возможность подключения к газовому трубопроводу, лучше воспользоваться комбинированным котлом. Он будет гораздо удобнее в применении и экономнее в финансовом плане.

Особое удобство в эксплуатации — комбинированные котлы
Конструкция комбинированных вариантов дополнена газовой горелкой и автоматикой. Начинают топить печь, например, дровами, а при их прогорании и остывании котла ниже установленной температуры, срабатывает автоматика, и включается газовый подогрев, который поддерживает теплоноситель в нужном температурном режиме. Такой котел может быть одноконтурным, но иметь в общей системе встроенный бойлер.

Котел можно встроить в универсальную систему отопления и горячего водоснабжения
Кроме того, есть модели котлов, которые работают на электричестве вместо газа.
Положительные характеристики котла
У любого из агрегатов, описанных выше, есть объединяющие и индивидуальные положительные качества, именно поэтому сегодня их устанавливают в загородных домах и заменяют ими старые кирпичные печи.
- Котлы длительного горения имеют хорошие показатели и обладают очень высоким КПД, который доходит до 90—95%.
- Если в котле встроена система автоматической подачи топлива, то он может долгое время работать без участия человека. Срок такой работы указан в паспорте агрегата.
- Эффективность работы прибора объясняется способностью конструкции при нормальной эксплуатации достигать температуры до 600—650 градусов.
- Котлы — экологически чистые приборы, так как сжигается не только заложенное топливо, но и угарный газ, образующийся при его работе.
- Всегда есть возможность регулировать интенсивность горения.
- Современные котлы оборудованы автоматикой, которая позволяет управлять ими через пульт, а также через него же получать сигнал о возникших при работе неполадках.
- Удобство комбинированных котлов заключается в использовании разного вида топлива, что позволяет существенно на нем сэкономить.
- В котлах с водяным контуром реализована возможность регулирования температуры воды, как для отопления, так и для ГВС.
- При большом количестве положительных качеств агрегата, он имеет вполне доступную цену.
- Простота в монтаже и эксплуатации, а также неприхотливость в уходе и возможность делать это самостоятельно, не привлекая специалистов.
- Компактность, по сравнению с кирпичными строениями.
Объективные недостатки
К отрицательным моментам в использовании котла можно отнести:
Загрузка топлива в прибор производится вручную.
В некоторых моделях отсутствует регулировка температуры воды, поэтому при выборе котла на это нужно обратить особое внимание.
Требуется достаточно много места для хранения дров или другого твердого топлива.
Есть определённые требования к просушке топочного материала.
При использовании комбинированных моделей, нужно будет отвести для системы отдельное помещение — котельную.
Это достаточно существенные недостатки для тех, кто имеет небольшую площадь дома, но при необходимости установить отопление, всегда можно найти выход из положения.
Реально ли построить такой котел своими руками?
При желании и при наличии некоторых навыков, вполне возможно сделать котел длительного горения на твердом топливе самостоятельно
Для эффективности его работы совершенно не важно, какой формы будет котел — круглый, изготовленный из бочки или газового баллона, или сваренный из металлических листов. Главное — правильно устроенная внутренняя система
Принцип работы
Начнем наш разбор именно с принципа работы, потому что в данных отопительных агрегатах твердое топливо сжигается совершенно по другой технологии. Здесь нет горения дров или угля, опилок или щепы в прямом смысле этого слова. Нет открытого огня и пламени. Тепловая энергия выделяется из зоны, где твердое топливо тлеет. Именно тление является основным видом сжигания топлива и получения теплоты.
Насколько эффективна данная технология? Тление – это тот же процесс горения только при небольшом количестве кислорода. Температура выделяется практически та же, а вот топливо сгорает намного медленнее. Вот почему данные отопительные приборы называют котлами на дровах длительного горения. Одной закладки хватает минимум на 12 часов. Если сравнивать с обычным отоплением на дровах, то в данном случае одной закладки хватает всего лишь на 4 часа. Как видите, выгода явная.
Внутреннее устройство
Но возникает сомнение, почему тепловой энергии выделяется больше. Как не крути, а открытый огонь сам по себе уже будет гарантов выделения огромного количества тепла. Тление такого выдать наверняка не сможет. Все верно. Но производители используют одну хитрость. В котлах длительного горения используется большое количество твердого топлива, которое уплотняется по максимуму. Если это дрова, то их стараются уложить самым плотным образом. Если это опилки, шелуха, листья деревьев и прочее, то производится обязательная трамбовка. Чем плотнее топливо, тем лучше. К тому же добавим, что в котлах данного типа используется широкая зона тления. Эти два показателя и влияют на высокую тепловую отдачу.
Нюансы эксплуатации
Обязательно изучите сопутствующую документацию. На эффективность и работоспособность оборудования может влиять ряд факторов, которые на первый взгляд кажутся малозначительными.
Стоит отметить, что большинство производителей строго рекомендует проводить монтаж силами специалистов, т. к. в ряде случаев отступление от этого требования может привести к потере гарантийных обязательств, а в худшем случае — к серьезным поломкам и авариям.
После монтажа регулярно осматривайте периметр обвязки на предмет протеканий.
Зачастую оборудование чувствительно к качеству топлива. Наиболее неприхотливыми являются чугунные котлы, а стальные при использовании высокотемпературных видов топлива могут прогорать
Поэтому важно следовать рекомендациям производителя и при выборе топлива
Любой котел, даже оборудованный разного рода системами самоочистки, требует регулярного ухода и очищения как от золы, так и от копоти.

Как увеличить производительность
Экономическая и фактическая эффективность котла зависит не только от его начальных характеристик.
Для улучшения показателей примите следующие меры:
- Используйте качественное и сухое топливо. Влажные дрова заберут часть энергии на высушивание, а бытовой мусор приведет к загрязнению теплообменника и дымохода.
- Регулярно уделяйте время чистке.
- Обеспечьте стабильный приток воздуха в помещение, где расположен котел: огня без кислорода не бывает.
- Уменьшите теплопотери отапливаемых помещений. Особенно хорошо определить проблемные места можно с помощью тепловизора.
- Установите вспомогательное оборудование: например, теплоаккумулятор.
Дополнительное оборудование и его монтаж приводят к увеличению затрат, потребуется не только буферная емкость, но и циркуляционный насос, однако оно того стоит. Теплоемкость воды довольно высока: 1 литр воды, остыв на 1 градус, может нагреть 1 м³ воздуха на 4 градуса.
Принцип работы аккумулятора достаточно прост: насос отбирает из бака холодную воду, прогоняет ее через теплообменник котла и возвращает назад. Так происходит до тех пор, пока вся вода не нагреется. После того как все топливо прогорело, бак полностью заполнен горячей водой. Тепловая изоляция бака позволяет сохранить воду горячей от нескольких часов до суток, поэтому полученное тепло можно использовать в течение довольно длительного периода времени.
Выбираем тип твердотопливного котла
Как понять, какой котёл будет оптимальным для обслуживания конкретной системы отопления? Очевидно, следует определиться с видом топлива, требуемой мощностью агрегата и особенностями его конструкции, процесса монтажа и последующей эксплуатации, а также с особенностями подключаемой системы отопления.
Самодельный котёл на твёрдом топливе
Среди материалов, которые можно использовать в качестве твёрдого топлива, наиболее широкое распространение получили:
- уголь;
- торфяные брикеты;
- пеллеты;
- дрова;
- опилки и другие горючие отходы производства.
Виды твёрдого топлива для котлов отопления на фото
Выбор типа и конструктивного исполнения отопительного котла напрямую зависит от того, каким топливом вы собираетесь пользоваться, требуемой производительности системы отопления, а также места, где он будет установлен. Для самостоятельного изготовления подходят следующие модификации твердотопливных отопительных агрегатов:
- Классические
Оснащаются стальным или чугунным теплообменником, могут использоваться и для отопления, и для целей горячего водоснабжения. КПД таких котлов составляет около 85%.
Классический котёл на твёрдом топливе
- Пиролизные
Обеспечивают раздельное сгорание топлива и выделяемых при этом летучих газов, благодаря чему существенно повышается эффективность и, следовательно, экономичность отопительной системы.
Схема пиролизного котла на твердом топливе
- Пеллетные
Эффективность этой разновидности котлов отопления достигает 90%. Главным их достоинством является высокая степень автоматизации рабочих процессов, а недостатком – сложность конструкции.
Принцип работы пеллетного котла
- Длительного горения
Способны непрерывно работать на протяжении всего отопительного сезона, требуя загрузки топлива 1 раз в несколько суток, что выгодно отличает их от классических твердотопливных котлов.
Компоновка твердотопливного котла длительного горения
Типы котлов и принцип их работы
Все котлы, работающие на твердом топливе, подразделены на несколько типов, которые отличаются между собой многими показателями. Но по основным характеристикам, их подразделяют на четыре вида:
- Классические;
- Пиролизные котлы отопления;
- Котлы длительного горения;
- Автоматические;
Классические котлы— принцип работы классического твердотопливного котла заключен в том, что тепло дается путем пламенного сгорания топлива. Имеет две дверцы, через одну из которых загружается топливо, через другую — котел чистится от золы и других продуктов горения. Могут работать на двух видах топлива — дрова и уголь.
Отличаются по материалу изготовления теплообменника, могут быть изготовлены из чугуна или стали. Чугун является более приоритетным в плане долговечности, срок его эксплуатации более 20 лет. Из недостатков можно отметить тот факт, что он боится механических ударов и очень чувствителен к перепадам температур, что может привести к разрушению. Стальной теплообменник более устойчив к перепадам температур и повреждениям, но срок его службы значительно ниже — чуть больше 6 лет.
Пиролизные (газогенераторные) котлы— данный вид котла работает по принципу пиролиза, то есть разложения и газификации твердого топлива. Этот процесс происходит при закрытом дымоходе и закрытой камере сгорания. После высвобождения древесного газа, образовавшегося в процессе пиролиза, он направляется в сопло горелки, где смешивается с вторичным воздухом, который накачивает вентилятор. После этого газовая смесь попадает в камеру сгорания, где воспламеняется. Горение происходит при температуре, которая иной раз достигает 1200°, и процесс будет продолжаться до полного сгорания твердого топлива.
Котлы длительного горения— в этом виде котла длительный процесс горения обеспечивается специальными приемами. В настоящее время существует две системы длительного горения (канадская система Булерьян, и прибалтийская Стропува), но вторая не нашла широкого применения за счет дороговизны, сложности эксплуатации и еще множества технических параметров.
Котлы длительного горения можно отнести к пиролизным котлам, но принцип работы будет немного иным. Первая система (Бурельян) представляет собой печь, состоящую из двух камер, где в нижней камере происходит тление и образование газа. После поступления газа во вторую камеру, происходит смешивание с воздухом и дальнейшее полное его сгорание (дожиг топлива). Конструкция подобного твердотопливного котла представляет собой цилиндр, с ввареными в него трубами на половину окружности. Расположение труб снизу-вверх обеспечивает хорошую циркуляцию воздуха, тем самым увеличивая теплоотдачу. Устанавливаются в основном в нежилых помещениях, отлично подойдет для отопления гаража или дачи. Цена на такой котел адекватная, есть возможность выбрать типоразмер, подходящий той или иной площади.
Котел по системе Стропува имеет два цилиндра, один из которых находится внутри второго, по принципу матрешки. Все пространство между ними заполнено водой, которая постепенно нагревается. Внутренний цилиндр системы играет роль топки, куда при помощи распределителя подается воздух. После загрузки топлива, оно начинает прогорать сверху вниз, тем самым нагревая теплоноситель. Заявленная производителем цена, длительное время горения, от 2 до 4 суток, в зависимости от топлива, требуемое остывание котла и дальнейшая чистка перед новым розжигом, удваивают задачу и приносят неудобства. Поэтому данный тип котла не принес широкого распространения.
Автоматические котлы— в данном типе котла процесс загрузки топлива, и очищение от золы полностью автоматизированы. Котел оснащен шнековым или транспортерным бункером для подачи топлива и автоматического очищения от золы. Вариант угольного автоматического котла подразумевает движение пласта горения топлива, которое необходимо для полного сгорания. Для этого, автоматический котел оснащается подвижными колосниками, или рубящими и двигающими механизмами. Параметры нагрева теплоносителя и горения топлива обеспечиваются принудительным наддувом.
В преимущества и особенности автоматических котлов можно включить;
- Не требуют трудоемкого обслуживания и пристального внимания за процессом горения;
- Снабжены, входящим в комплект, регулятором температуры;
- Многие оснащены датчиком, отслеживающим температуру в самом котле;
- КПД автоматического котла составляет до 85% от общего числа;
- Длительная работа, ограниченная только лишь емкостью бункера для автоматической подачи топлива.
Стоит учесть, что и расход топлива, в частности, угля намного меньше, чем в традиционных твердотопливных котлах.
























































