Расчеты
Важно правильно выполнить расчеты всех элементов шкафа купе. Это обеспечит его правильное размещение, удобное использование. Даже небольшое отклонение может привести к блокированию дверей или они вовсе будут постоянно съезжать на одну сторону
Даже небольшое отклонение может привести к блокированию дверей или они вовсе будут постоянно съезжать на одну сторону.
Высота
При расчете высоты конструкции не стоит полагаться на измерения расстояния от пола до потолка. Чтобы замер был выполнен правильно, стоит учитывать показатель общего пространства. Максимальным показателем высоты шкафа будет размер этого же параметра ниши. К примеру, если высота комнаты от пола до потолка составляет 250 см, то в среднем размер конструкции должен составлять не более 240 см.
Для того чтобы выполнить замер высоты проема правильно обязательно нужно снять измерения в трех точках – две боковые стороны и середина. Если будут получены одинаковые параметры, то не будет трудностей. Но если они будут отличаться, то тогда высчитывание параметров должно опираться на маленький показатель, который снимается от пола до перекрытия проема. На показатель высоты оказывает влияние наличие верхнего элемента шкафа – крышки. При этом стоит учитывать, на какую область она будет фиксироваться – к крышке мебели или к поверхности потолка.
Итак, если стандартная высота шкафа составляет 2400 мм, то при выполнении расчета габаритов дверей стоит отнять данные следующих элементов:
- толщина крышки – 1,6 см;
- стоит отнять зазор в 14 мм, который требуется для свободной установки двери в область верхних направляющих;
- размер толщины нижних направляющих элементов с роликовой конструкцией – 6 мм;
- зазор между областью нижних направляющих и полотна – 15 мм.

Ширина
Для того чтобы выполнить правильный расчет ширины, следует замерить ниши по трем точкам, также как при выполнении измерения высоты. Исходным параметром ширины будет самый маленький показатель.
Высчитывание размеров дверей шкафа купе по их ширине напрямую зависит от количества дверных перегородок. Сначала требуется сделать замеры ширины общего проема, а затем полученный показатель разделить на количество створок. Дальнейшие подсчеты необходимо проводить только для одного полотна.
Для того чтобы можно было точно понять, как производятся расчеты, стоит рассмотреть пример:
- ширина ниши составляет 300 см, при этом она имеет три откатных полотна;
- ширина одной единицы полотна будет составлять 100 см;
- обязательно необходимо добавить нахлест между дверьми, который сможет закрыть внутреннее пространство от наружного взора;
- обязательно к боковым сторонам дверей необходимо добавить по 2,5 см;
- в итоге получается, что ширина полотен составляет 105 см.
Наполнение
Наполнение находится в рамке, которая выполнена из алюминиевых профилей. Для того чтобы расчеты были выполнены правильно, требуется отнять от общих параметров дверей размер ширины профилей, которые обрамляют их со всех сторон.
Пример одного из вариантов расчета:
- первым делом замеряются размеры ширины ручек, возьмем показатель 16 мм;
- так как ручек две, то показатель необходимо умножить на 2, а значит 16*2=32 мм;
- из параметра ширины вычитается общая ширина ручек, к примеру, 712-32=680 мм;
- сделайте измерения расстояния верхней и нижней областей, которые отделяют полотно от высоты ниши. Например, оно равно 12 и 47 мм соответственно;
- возьмем показатель высоты двери 2460 мм. Складываем два значения верхней и нижней области — 12 и 47, получаем 59. От 2460 отнимаем 59 и получаем 2401 мм, это и будет высотой наполнения.
ДСП
Зеркало
Профиль ручек
В конце рассчитывается рама ручки. Ее высота совпадает с дверным полотном – 2401 мм. Для того чтобы сделать правильные расчеты длины горизонтов, обязательно выполните примерку профиль ручки до самого паза.
Как это выполнить, можно рассмотреть на примере:
- размер ширины равен 24 миллиметра;
- в связи с тем, что ручек две, то этот показатель нужно умножить на два, получаем 24*2=48 мм;
- далее от ширины отнимаем общую ширину ручек и получаем 712-48=664. Этот показатель будет являться длиной верхнего и нижнего трека.
Это и будет правильным расчётом всей конструкции. Главное, при проведении всех измерений соблюдать точность и учитывать даже малейшие отклонения
Ведь важно, чтобы шкаф купе был не только удобным, но и точно вписывался в помещение. К тому же двери шкафа купе являются основным элементом конструкции и очень важно знать, как рассчитать их правильно. Расположение профиль ручек
Расположение профиль ручек
Асимметричная ручка
Симметричная ручка
Как рассчитать стоимость шкафа по размерам деталей
Из каких расходов складывается стоимость шкафа?
- Корпус. Расход листового материала – ДСП и ДВП – подсчитывается при составлении карт кроя. Также необходимо подсчитать количество кромки для оклейки видимых торцов.
- Фасады. Чаще всего рассчитывается квадратура фасадов, поскольку большинство производителей мебельных фасадов озвучивают стоимость за квадратный метр.
- Крепеж. В мебельном производстве с изготовлением под заказ редко точно подсчитывают стоимость мелкого крепежа (метиз) в виде конфирматов, саморезов, гвоздей, полкодержателей и т.д. Обычно «покрывают» эти расходы, накидывая 10% на стоимость листового материала. Или формируют примерный комплект метиз на одну секцию, 100-150 рублей. К примеру, в рассматриваемом для расчетов шкафу – 2 секции. Значит, на мелкий крепеж достаточно заложить сумму в 200-300 руб.
- Фурнитура. Помимо крепежа, с помощью которого соединяется вся конструкция шкафа, требуется покупка функциональной и лицевой фурнитуры (о видах комплектующих можно прочитать здесь).
Составление карт кроя
После того, как список деталей для изготовления шкафа своими руками составлен, нужно рассчитать, сколько листов ДСП понадобится для этого. Формат ДСП может быть разным – соответственно, разнится и стоимость за лист, и расход материала. Это может быть 2750х1830, 2440х1830 и т.д.
Можно установить специальную мебельную программу раскроя (например, любую версию Cutting) и вбить размеры деталей с указанием количества в отведенные ячейки формы. Будьте внимательны и не «переворачивайте» детали, сначала записывается длина, потом ширина.
Одно нажатие и программа выдаст вариант расположения деталей на листах ЛДСП заданного вами размера.
Впрочем, для шкафа составить карты кроя можно и вручную. Поскольку все основные детали идут одной ширины, равной глубине шкафа, сделать это не так уж сложно.
Вычерчиваются заготовки, в масштабе листа ЛДСП. Поскольку лист приходится обрезать по краю (нередко внешние торцы сбиты) и пил имеет свою ширину, размеры требуется округлять. Например, до 2400х1800 при 2440х1830.
Затем лист «распускается» по длине на ширину заготовок.
В полученные полосы «раскладываются» детали. Сначала самые длинные (боковины, перегородки), затем на остатки короткие (полки).
«Невидимые» детали можно вращать (располагать поперек), для минимизации расходов. Например, ребра жесткости, детали ящиков, усилители дна и т.д.
Подсчет количества кромки
Ламинированное ДСП после распила имеет необработанные торцы. Все видимые оклеивают кромкой: меламиновой или ПВХ разной толщины. Первую можно наклеить с помощью утюга, в домашних условиях. Кромка ПВХ более трудоемка в наклейке, как правило, для этого требуется специальное оборудование.
И та, и другая кромка продается метражом. Работа по наклейке также оценивается по количеству погонных метров. Значит, для расчета стоимости (как закупки, так и наклейки) требуется знать погонаж.
Сделать это довольно просто. Закатываются кромкой только видимые торцы. А в шкафу «видны» только внешние края деталей. Для простой конструкции, имеющей внутри только полки и перегородки, достаточно сложить все длины деталей, чтобы получить искомую величину.
К полученной цифре добавляется кромка по глубине шкафа (от боковин) и деталей выдвижных ящиков.
11,41+0,6*2=12,61 (м.п.)
Общее значение увеличивается на 10%, поскольку при оклейке кромка разрезается с запасом, и округляется в большую сторону до целого числа.
12,61*1,1=13,87 округляем до 15 м.п.
Составление общей сметы на закупку материалов и фурнитуры
Обычно это делают также с помощью excel. В табличную форму входят наименования материалов корпуса, фасадов, перечень фурнитуры, комплектующих и метиз, с указанием требуемого количества и закупочной стоимости.
Расчет необходимого количества материалов
После того, как человек полностью определился с размерами изделия, он сможет быстро и просто выполнить расчет необходимого для изготовления материала. Оба вида конструкции (корпусная и встроенная) могут иметь дверные створки, обладающие роликами или верхней кареткой. Также возможно использовать складывающийся механизм.
Выбрав место для установки, набросав эскиз от руки, начинаем рассчитывать и прорисовывать первоначальный проект конструкции.
Для расчета необходимого количества материала рекомендуют составить таблицу, в которой следует указать количество фурнитуры, элементов внутреннего наполнения, а также наружного короба. Обязательно учесть толщину кромок и написать название материалов.
Для того, чтобы выполнить раскрой достаточно указать в цехе распила параметры шкафа купе. После этого будут изготовлены все необходимые заготовки для его изготовления.
Берутся во внимание все объекты, находящиеся в непосредственной близости или соприкасающиеся с конструкцией, измеряются расстояния, толщина материалов, учитываются неровности стен. Во время расчета материалов следует учитывать:. Во время расчета материалов следует учитывать:
Во время расчета материалов следует учитывать:
- высоту цоколя;
- зазор со всех сторон фасада ящика, который будет выдвигаться;
- внутренне наполнение.
Не стоит спешить во время данного процесса. Все следует делать тщательно и скрупулезно. В противном случае материала может не хватить или, наоборот, остаться слишком много.
Обязательным условием для успешной установки шкафа является замер углов. Должна быть стопроцентная уверенность в том, что они прямые.
Определяем количество дверей
Во время проведения всех замеров и расчетов требуется соблюдать определенные правила:
- замеры лучше выполнять в нескольких областях, потому что бывают отличия;
- между замерами может быть погрешность в полтора сантиметра;
- показатель высоты должен быть меньше этого же значения проема на 4 см;
- при выполнении расчетов обязательно нужно соблюдать точность;
- во время замеров дверей рекомендуется учесть важный фактор – возможность прохождения данных элементов через проемы жилого помещения.
Для комфортного открывания шкафа купе рекомендуется использовать конструкцию с двумя створками. В продаже часто встречаются изделия с тремя дверцами, они довольно широкие и занимают много места. При выборе изделий в первую учитывайте возможности площади жилого помещения.

Варианты расположения дверей купе
Где можно купить и как правильно выбрать шкаф
Верный выбор и покупка шкафа купе определяются несколькими факторами. Придерживайтесь рекомендаций профессионалов, чтобы мебель решала все поставленные задачи для вашей семьи.
Сегодня есть специальные программы для создания шкафа.
- Тренды мебельного мира. С каждым годом появляются новые решения, оригинальные дизайны, более устойчивые конструкции. Интересуйтесь новинками, которые значительно упрощают жизнь, как в выборе нового купе, так и создания его с нуля.
- Учитывайте уникальность вашего помещения, расположение отопительной системы, окон, дверей. Шкаф должен решать ваши задачи, а не ставить новые.
- Подходящий тип конструкции купе важен для удобства дальнейшей эксплуатации. Полувстроенные шкафы, например, могут выступать в роли разделяющей стены, когда из одной большой комнаты получается две.
- Выберите комфортный тип механизма раскрытия дверей. Раздвижной при помощи роликов удобен в спальнях и гостиных. Подвесной тип без нижних направляющих чаще используют в детских, чтобы ребенок не спотыкался и не наступал, когда хочет достать вещь.
- Не экономьте на качестве материалов. Хороший шкаф служит десятилетиями.
Вычисляя ширину фасада, не стоит забывать о кромке, которая будет впоследствии наклеена по периметру.
Расчет размера перехлеста дверей купе из асимметричного профиля

Чтобы двери становились внахлёст, и не мешали друг другу необходимо, чтобы задняя направляющая была удалена от передней
Раздвижная часть шкафа создана с предусмотрением использовать ее в открытом и закрытом положении. Обязательным является условие, при котором профиль одной из створок закрывает поверхность второй.
Определение размера перехлеста дверей прост: ширина проема делится пополам (при условии ровности шкафа) и добавляется размер ручки. Благодаря этим простым расчетам мы определяем ширину перехлесту.
Размер перехлеста дверей купе из асимметричного профиля
При условии если профиль асимметричен, то ширина проема измеряется отдельно для верха и низа и каждой двери.

Сечение профиля асимметричной ручки
Также для легкости вычислений некоторые мастера пользуются достаточно простым правилом. Оно звучит так: размер перехлеста должен быть равен ширине дверной ручки.
Условия, которые могут повлиять на размер перехлеста дверей купе:
- размер фурнитуры;
- габариты ручки;
- количество створок;
- наличие шлегеля (деталь, которая смягчает удар при открытии дверок).
Правильное выполнение расчетов обеспечит удобное использование мебели.

Сечение профиля симметричной ручки
Рассчитываем размеры шкафа

Для первоначально расчета нам необходимы определить L — высота проема и B — ширина проема

Первый этап проектирования шкафа — разметка
- Высота. Основное правило, которому нужно следовать, это не рассчитывать только на параметры стен. Почему? Соприкосновение с потолком не позволит шкафу купе встать в нужное положение. Это довольно массивная конструкция, которую обычно собирают горизонтально, а устанавливают вертикально. Поэтому, важнейшим значением для вычисления правильного размера является его диагональ, длина которой обычно меньше примерно на 10 см высоты задней стенки. Здесь лучше воспользоваться формулой √(a²-b²) = x . Для примера: 2700 (расстояние от пола до потолка 2700 мм) х 27 = 72900 (a2); 50 (глубина шкафа 50 мм) х 50 = 2500 (b2); 72900 – 2500 = 70 400. Извлекаем корень (воспользуйтесь онлайн-калькулятором) из 70 400, получаем 265,32. Округляем до 265. Итого, высота нашего изделия – 2650 мм.
- Глубина. Здесь стоит сразу оговориться, что данный параметр лучше сделать размером не меньше 550 мм, а лучше 650 мм и более, так как стандартная длина штанги для вешалок составляет 450 мм, поэтому ваша одежда, особенно объемные пуховики и шубы должны чувствовать себя комфортно в таких стесненных условиях. Стоит уточнить, что глубина выбирается абсолютно разной, исходя из ваших предпочтений и габаритов помещения.
- Ширина. Здесь все намного проще. Замеряем внутренние габариты проема, вычитаем от этого размера 16 мм (толщина ДСП), получаем монтируемые значения проема.

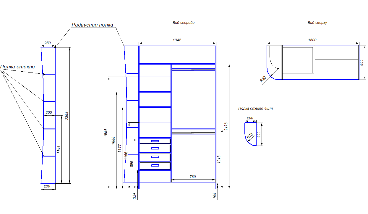
Основные параметры шкафа-купе

Развернутый чертеж для шкафа-купе шириной 2860 мм и тремя дверями
Встроенный шкаф-купе (пример расчёта)
Высота: 2500 мм.
Ширина: 1900 мм.
Глубина: 600 мм.
Обрамление дверей — Шампань (Оптима)
Цвет видимых частей шкафа-купе — под дерево, наполнение — под дерево.
Шкаф без задней стенки, без пола и без одной боковой.
Расчет дверей шкафа-купе. При расчете дверей шкафа-купе необходимо помнить, что по технологии на каждую пару дверей обязателен нахлест, который составляет в данном случае 20 мм и регулировочный зазор по высоте не менее 45 мм. Следует так же помнить, что во всех случаях необходимо учитывать толщину ДСП боковых стенок и фальшпанелей шкафа-купе (16 мм).
Формула расчета ширины дверей шкафа-купе выглядит так: Высота проема (2484 мм) — регулировочный зазор (45 мм) = 2439 мм (высота двери) Ширина проема (1884 мм) + нахлест (20 мм) / на количество дверей (2 шт.) = 952 мм (ширина двери).
Чтобы узнать стоимость данной двери, нужно найти в «Таблице расчета» соответствующую группу дверей: Дверь-купе «Оптима» (Раум+) ДСП, в графе «Размер 1» проставить высоту двери 2439 мм, в графе «Размер 2» ширину 952 мм, в графе «Кол-во» — количество, в последней графе появиться стоимость дверей = 8749 руб.
Для дверей-купе необходим комплект двухполосных направляющих, 700 р./п.м. Для расчета стоимости направляющих в строке К-т направляющих «Оптима» (Раум+) в соответствующих графах проставляем длину и количество. Получаем 1319 руб.
Расчет корпуса шкафа. В случае корпусного шкафа требуются две боковые панели, крыша, пол, задняя стенка. Рассматриваемый шкаф — «частично встроенный», из корпусных элементов требуется только одна боковая панель и крыша. Все детали из ДСП считаются по площади. Следовательно, формула расчета боковой стенки равна: Высота шкафа (2500 мм — 16 мм(толщина крыши) = 2484 мм) х на глубину (600 мм) х стоимость ДСП 16 мм «Egger» панель. 28 цветов дерева (957 руб/кв.м.) и прибавляем стоимость кромки ПВХ 2 мм (55 р./м.п.).
В «Таблице расчета» в строке ДСП 16 мм «Egger» панель. 28 цветов дерева в соответствующих графах проставляем размеры боковой панели: высота/длина, ширина/глубина, количество. В последней графе видим стоимость с учетом ПВХ 2 мм = 1563 руб. Так же рассчитывается крыша(потолок) шкафа: 1900 х 600 х 1 х (957 (+ПВХ)) = 1195 руб.
Расчет внутреннего наполнения из ДСП. Двери-купе занимают 100 мм от глубины шкафа. Следовательно, перегородка на 100 мм меньше в глубину, чем боковая стенка шкафа-купе: габаритная глубина 600 мм — 100 мм = 500 мм, высота шкафа 2500 мм — 16 мм(толщина крыши) = 2484 мм. Полки рассчитываются за вычетом толщин боковых панелей и перегородок: 1900 (габаритная ширина) — 16 (боковая панель) — 16 (перегородка) = 1868/2 = 934 мм при глубине 500 мм. В «Таблицу расчета» размеры и количество проставляются аналогично корпусным деталям, только для экономии можно изменить цвет ламината (ДСП 16 мм «Egger» БЕЛЫЙ — 736 р./кв.м.). Стоимость перегородки = 1051 руб. и 5шт. полок = 1870 руб.
Штанга. Ширина проема шкафа-купе, где установлена штанга для одежды (934 мм) х стоимость погонного метра штанги с креплением. В «Таблице расчета», строка — «Вешало труба-круг. хром с крепл.», проставляем длину и количество. Получаем 286 руб.
Сетчатая полка для обуви. Сетчатое наполнение рассчитывается по стоимости погонного метра. Ко всем сетчатым полкам требуются дополнительные крепления. В данном случае нам понадобится обувная сотовая полка с креплением. Ширина проема шкафа-купе, где установлена полка для обуви (934 мм) х стоимость погонного метра(515 р.) + комплект креплений для сотовой обувной полки (148 р.). В «Таблице расчета», строка — «Полка обувная с креплением», проставляем длину и количество. Получаем 629 руб.
Последним пунктом в расчете шкафа-купе является подсчет «шлегеля» — противопыльных щеток(55 р./п.м.), «позиционеров»(100 р./шт.) и «мебельных уголков»(14 р./шт.). В данном варианте шкафа достаточно 32 уголка(448 руб.). Эти элементы в «Таблице расчета» рассчитываются автоматически (уголки обязательны) = 1185 руб.
Общая стоимость встроенного шкафа-купе алюминиевой системы «Оптима» (Раум+), рассматриваемого в данном примере с учетом доставки и монтажа, без учета скидок, составит: 17952 руб. + Установка 12% (но не менее 1500 руб.) + Доставка = 21004 руб. Действует система скидок до 15%
Особенности конструкции двери купе
При установке такой конструкции стоит учитывать то, что она имеет свои нюансы. В наши дни они продаются полностью укомплектованные и готовые к эксплуатации. Делятся на встраиваемые и навесные системы. Монтаж первого варианта не портит внешний вид и более актуален, но требует специальных инструментов. Установка второго происходит снаружи и сразу же видна взгляду. Зато она более простая, чем первая.

Если фасад имеет зеркальные элементы, они должны быть покрыты специальной плёнкой, которая в случае повреждения удержит осколки и не даст им разлететься по комнате.
К преимуществам относится комфорт и практичность, эстетичный внешний вид, а также экономия свободной площади. Раздвижная система занимает гораздо меньше места, чем стандартные двери. Правда, уровень изоляции, значительно ниже, чем у обычного дверного полотна.
Главной особенностью является то, что устройство, можно сказать, висит в воздухе. Рельсовая система находится в верхней части дверного полотна. Она состоит из роликов и специальной направляющей.

Размеры всех деталей обязательно стоит учитывать во время подготовки проекта изделия.
Рекомендуемые формулы расчетов
Принцип вычислений одинаковый, но принимается во внимание количество створок. Исходная величина – ширина проема
Шкаф на 2 двери купе. К результату измерений ниши (проема) прибавляется величина перехлеста, и полученное значение делится на 2.
Трехдверная конструкция. Отличие в том, что увеличивается количество ручек и перехлестов полотен. Следовательно, формула принимает иной вид. Вычисление производится так: от ширины проема отнимается двойной размер дверной фурнитуры, но результат делится уже на 3.
Примечание
Это справедливо, если требуется рассчитать максимальную ширину двери. Как правило, домашние мастера устанавливают так называемые отбойники створок. И если их толщина значительная, то придется эту величину (умноженную на 2, так как монтаж приспособлений делается с обеих сторон) отнять от полученного значения. Это и будет оптимальная ширина шкафа купе.
Ширина и перехлест дверей купе
Не рекомендуется делать ворота размером менее 500 мм: ворота будут неустойчивыми из-за близости роликов. Немного больше силы при открытии и он может упасть с треков.
Также не делайте отсеки слишком широкими: они будут неудобны в использовании. Максимальная ширина 1000-1100, но лучше остановиться на средних значениях 700-900 мм.
При расчете ширины двери «хорошая практика» заключается в том, чтобы избежать перекрытия внутреннего пространства с боковым профилем. То есть, перекрытие раздвижных дверей должно точно соответствовать ширине профиля.

В этом случае толщина «пылезащитного колпачка» (шлегеля) обычно не учитывается, оставляя выбор — приклеивать или нет — после окончательной установки передней части отсека.
Если принять ширину открытой двери (асимметричный профиль, С) 25 мм, а закрытой (симметричный профиль, Н) 35 мм, то формулы для расчета ширины дверей 2, 3, 4 и 5 удобно представлены в табличной форме.
По расчетным формулам для рамных дверей с профилем Aristo видно, что наличие пылеуловителя уменьшает глубину перекрытия.

Методика расчёта
Чтобы четко понять все нюансы, возьмем в качестве примера конкретные размеры диафрагмы. Предположим, что основные входные данные следующие:
- Высота Hpr = 2400 мм;
- Ширина Lpr = 2700 мм;
- количество листьев N = 3 шт;
- толщина буферной ленты B = 6 мм;
- количество перекрытий A = 2 штуки;
- ширина профиля рамы C = 20 мм;
- Толщина обоих рельсов S = 40 мм.
При расчете необходимо учитывать размеры верхней и нижней шин корпуса. Верхний несущий выступ представляет собой перевернутую букву «W» в виде сечения.
Буферная полоса может иметь разную ширину. Минимальная толщина стоек составляет 6 мм, а максимальная — 10 мм. Этот фактор учитывается при расчете систем скольжения. В нашем случае расчетная толщина полосы составляет 6 мм.
Профиль ручки определяет ширину вертикальных краев полотна двери. Алюминиевые стойки снабжены прорезями для удержания полотна на месте и имеют снаружи изогнутую форму для удобного захвата рукой. Толщина горизонтальных и вертикальных каркасных реек одинакова, 20 мм.

Выполните расчет в следующем порядке:
- Высота двери NDv = NDv — S = 2400 — 40 = 2360 мм;
- ширина с учетом 2-х оборотов Ldw = (Lpr — AC — AB) / N = (2700 — 40 — 12)/3 = 2648/3 = 883
Размеры каждого из трех лопастей составляют 2360 x 883 мм.
Если количество портов будет отличаться, то расчеты можно производить по формулам:
— высота листа Hdv = Hdr — S;
— ширина Ldv = (Lpr — AC — NbfB), где Nbf — количество поясов в буфере;
— Высота заполнения Hnp = Hdv — 2C — 2D, где D — глубина канавки в раме;
— Ширина входа = Ldv — 2C — 2D.
Оптимальные размеры шкафа купе:
- Высота цоколя 70-100 мм,
- Общая глубина 600-660 мм,
- Глубина применения 500-560 мм,
- Консоль Radius с радиусными полками — идеально 300 мм шириной,
- Высота шкафа 2400-2500 мм,
- Глубина внутренних полок составляет 500 мм,
- Ширина внутренних полок составляет от 400 до 1000 мм. Не рекомендуется делать ширину внутренних полок более 1000 мм, так как они будут провисать,
- Диапазон высот между полками составляет 300 мм,
- Длина крюковой трубы 800-1000 мм. Длина трубы более 1000 мм не рекомендуется для вешалки, так как она будет провисать,
- Высота подвесных трубок составляет 900 мм для короткой одежды и 1400 мм для длинной одежды. В идеале, вы можете сами измерить свою самую длинную одежду и основываться на ней,
- Ящики высотой от 100 до 300 мм и шириной от 400 до 800 мм. Если больше 600 мм — то дно ящика должно быть уже сделано из ДСП, а не из ДВП (чтобы не было провисания).
Чтобы правильно подобрать размер гардероба, подумайте о том, для чего именно вы это делаете. Сделайте замеры этих предметов и спланируйте место для них в вашем будущем гардеробе. Существует еще один эффективный способ узнать правильный размер гардероба: вы можете использовать Google и ввести вопрос в поиске. Затем выберите «режим поиска — изображения». Вам предложат кучу различных вариантов расстановки этих или других элементов начинки, из которых вы сможете выбрать что-то для себя
Пример: шкаф прямой компоновки, внутренние размеры:
Пример: угловой шкаф, внутренние размеры:
Когда вы планируете делать большие шкафы, обратите внимание на размеры древесно-стружечных плит. Существует три основных формата ДСП:
- 2800 x 2070 мм,
- 2750 x 1830 мм,
- 2440 x 1830 мм.
Ситуация на работе Это может быть так: нужен кусок, например, крыша размером 2800 x 600 мм. Но в магазине есть только одна доска размером 2440 х 1830 мм. Чтобы не переделывать проект и сам шкаф позже, лучше позвонить и проверить наличие нужного вам размера листа. Тогда, в случае его отсутствия, можно сразу же переделать крышу. Например, сделайте его из 2-х деталей длиной 1400 мм, и установите их шарнир в нужном Вам месте.
Расчет деталей шкафа купе
Для удобного расчета комплектующих шкафа нам понадобится его рабочий чертеж.

Скачать:Чертеж шкафа-купе
Если вы не делали электронный чертеж, а рисовали его на бумаге, то вам будет немного тяжелее с расчетами, т.к. нужно будет все детали просчитывать на калькуляторе с помощью вычислений. Но и это реально выполнить. Многие ветераны мебельного производства и сегодня делают деталировку проекта только по расчетам и вычислениям.
Итак, наша задача составить список деталей с указанием их длины и ширины, с учетом всех необходимых отступов и зазоров.
Чтобы не запутаться, можно начать с перечисления комплектующих наружного короба, а потом постепенно перейти к более мелким деталям.
- В Excel файле забиваем название детали, ее длину и ширину (длина определяется по направлению структуры рисунка ДСП).
- Далее указываем обозначение кромок по длине и ширине детали. Клеиться могут как обе стороны, так и одна, или вообще без кромки. Кромкой клеить следует видимые торцы. Те грани, которые будут стыковаться с другой деталью, кромковать не нужно.
- При определении размера детали учитывайте толщину кромки. Если будет клеится кромка ПВХ толщиной 1 мм – сразу вычтите этот миллиметр с общего размера.
- В следующей колонке укажите количество комплектующих (в случае если они одинаковые и по размерам, и по кромкованию сторон).
- Далее забивается толщина материала и название плиты (например «ДСП венге», « ДСП береза майнау» «ДВП белое» и т.д.) Если шкаф делается из разных плит ДСП, то в строке напротив каждой детали нужно указывать материал, из которого она будет изготовлена.
Важные зазоры и отступы:
- Зазор на кромку, в зависимости от ее толщины, 1-2 мм,
- Внутренние комплектующие шкафа по глубине на 100 мм меньше глубины наружного корпуса,
- Если полки шкафа съемные, они кромятся со всех сторон. По ширине съемные внутренние полки должны иметь по 1 мм зазора с каждой стороны (это уже с учетом кромки),
- На фасаде выдвижного ящика делайте минимум по 1,5 мм зазор с каждой стороны (это уже с учетом кромки),
- Задняя стенка шкафа – ДВП. Она накладывается сзади и по размерам меньше на 1 мм от края с каждой стороны,
- Высота цоколя – до 100 мм.
Определение высоты и ширины двери

Начинают расчеты двери с вычисления ширины проема шкафа и его высоты.
Рассчитывается высота двери по вертикали с помощью формулы:
Высота двери купе = ВП (высота проема) – 40 мм.
Замеры габаритов проема осуществляются в нескольких точках. Уменьшение протяженности верхней направляющей на 10 мм при высоте внутреннего пространства верхнего профиля в 45 мм позволяет идеально заводить дверь в Ш-образный верхний трек и не допускать выхода роликов из полозьев. Приемлемая величина перепадов высоты не более 15 мм. Чтобы двери не скатывались, пол должен быть ровным.Либо ножки шкафа отрегулированы.
При установке дверей важно, чтобы проем шкафа был полностью закрыт. Для этого сдвижные двери монтируются внахлест с расстоянием друг от друга не более чем ширина профильной ручки
Количество перехлестов может быть таким же, как и число панелей. Вычисляется их ширина согласно следующим расчетам:
- Для двухдверного шкафа. Ширина = (Шп + 26) : 2, где Шп — это ширина проема.
- Для трехдверного шкафа. Ширина = (Шп + 26 * 2) : 3.
В формулу просвета двери-купе можно также вводить показатели щетки отбойника, с учетом величин, взятых по обеим сторонам панелей. При наличии же симметричной ручки, схема расчета по своим числовым показателям будет несколько отличаться от стандартной. В данном случае ширина сечения с 26 измениться на 32 мм.
Высота
Для расчета параметров необходимо знать внутренние размеры мебели. В паспорте изделия указываются внешние размеры. Если шкаф изготавливается и собирается только своими руками, то расчеты производятся тем же методом.

Пусть ширина ДСП – 16 мм, ширина профиля – 26 мм (величина алюминиевого профиля).
- Внутренняя высота, приравнивается разности между полной высотой шкафа и удвоенной толщиной ДСП (верх и низ): Hv=Hp-16-16.
- Высота двери Hd равна разности между внутренней высотой и шириной обеих направляющих – не менее 5 см: Hd=Hv-50. Если дверь предполагается подвесная, то величина несколько уменьшается.
Расчеты размеров створок
Высота
Для расчета этого параметра двери помещения не требуется никаких формул. Начальным значением является соответствующий размер открытия (он уже известен). Так как дверь не должна «падать» с профиля, необходимо учитывать высоту ее стены. Если мы ориентируемся на систему установки Raumplus, которая используется чаще всего, то это 45 мм.
Этот метод также используется для определения высоты шкафа, независимо от схемы, в которой он установлен. Алгоритм идентичен для всех структур данного типа.

Ширина
Она должна быть выбрана таким образом, чтобы полосы перекрывались в достаточной степени, чтобы соответствовать выбранному варианту рукоятки.





















![✍последовательный расчет дверей купе для шкафа [+формулы?]](https://zalpstroy.ru/wp-content/uploads/9/a/8/9a861febcef217e4d8d3be27a830e4ca.jpeg)


























![✍последовательный расчет дверей купе для шкафа [+формулы?]](https://zalpstroy.ru/wp-content/uploads/3/d/b/3db179a21fcae8a181d92898c1083474.jpeg)








