Плюсы и минусы бетонных сооружений
Перед началом работ необходимо убедиться, стоит ли вообще использовать в строительстве именно этот материал, или лучше заменить его более лёгким деревом или металлом.
Рассмотрим достоинства и недостатки бетонных лестниц.
Преимущества:
- такое сооружение более практично, при возведении дома с нуля по нему можно перемещать даже тяжёлые и громоздкие предметы, не боясь его повредить; чистовую же отделку можно сделать по завершении всех работ;
- подобные конструкции требуют минимального ухода; текущий же ремонт (подливка растрескавшихся ступеней) максимально прост, да и потребуется он лишь для уличных сооружений; внутри зданий же, при отсутствии значительных перепадов температур, бетон не потеряет прочности;
- подобные лестницы необычайно прочны и могут выдерживать практически любую нагрузку;
- они бесшумны и не скрипят под ногами;
- их форма выбирается любой, даже самой сложной; правда, на сборку опалубки для изделий необычных форм понадобится значительно больше времени, да и расчёты будут непростыми.
Лестница из бетона — прочная и надежнаяИсточник лестницы-бетон.рф
Недостатки подобных конструкций:
- такие сооружения массивны и требуют прочного основания, то есть фундамента, поэтому возводить их лучше ещё на этапе закладки самого дома;
- мощные бетонные лестницы будут смотреться удачно лишь рядом с такими же массивными элементами дома;
- при расчёте стоимости подобных изделий следует учесть не только цену раствора для заливки, но и арматуры, дерева для опалубки; их цена в результате выйдет немалой;
- работы по изготовлению бетонной смеси и заливке считаются довольно трудоёмкими и продолжительными по времени.
Но, если вы все же решили соорудить конструкцию на века своими силами, приступим. Прежде всего, нужно понять, какой тип лестницы будет наиболее приемлемым для вашего дома, и какие требования должны учитываться при расчетах.
Одна из конфигураций лестницыИсточник www.oman.ru
Необходимые расчеты
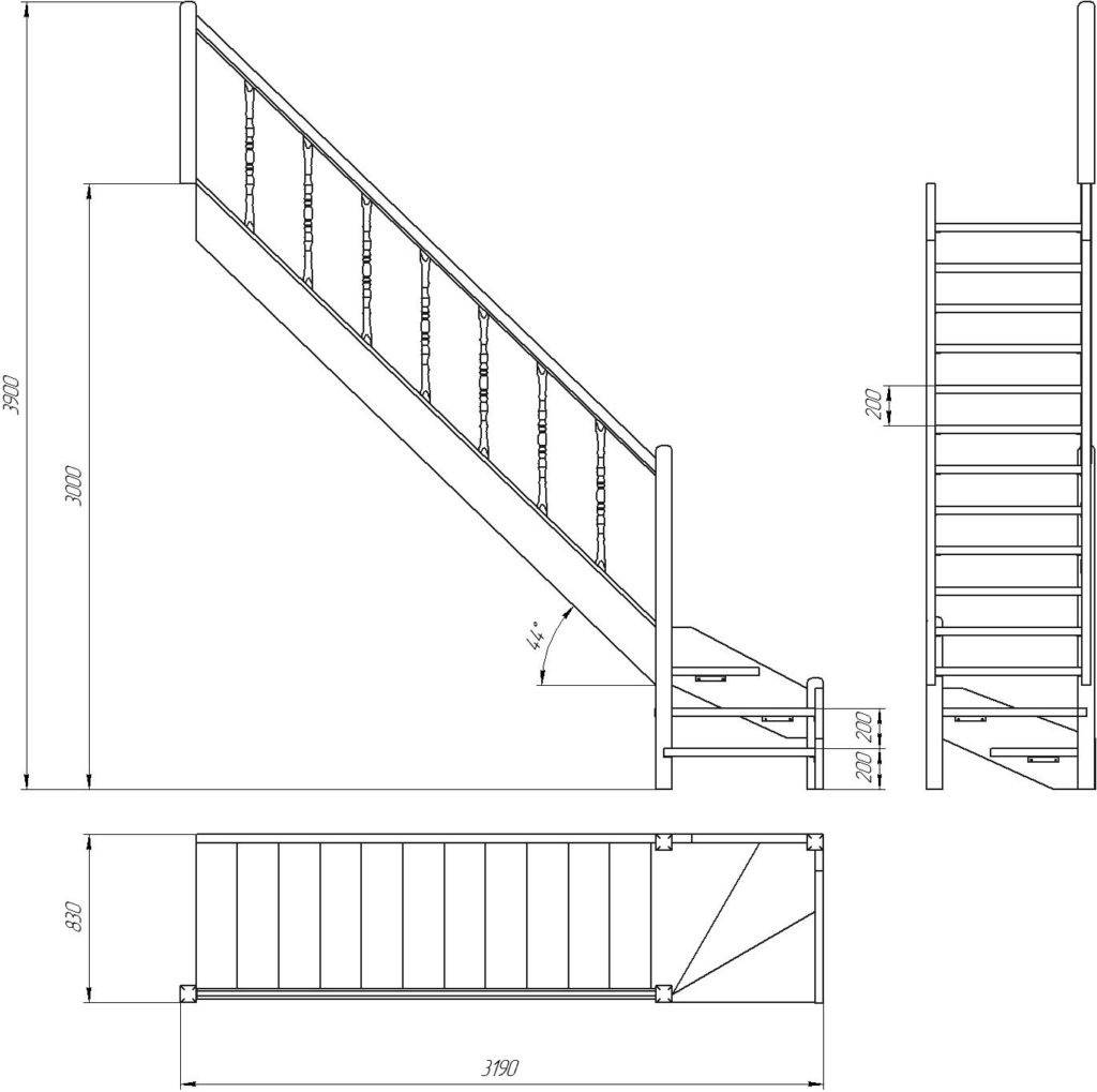
Создание лестницы невозможно без предварительного выполнения расчетов. При выполнении этого этапа необходимо определить параметр наклона изделия, количества маршей, размеров площадок, количество ступеней и их размеры.
Немаловажно выполнить расчет углов разворота забежных ступеней, ширину монолитной лестницы из бетона, высоту стяжек и будущую отделку. От правильности выполнения расчетов зависит количество расходуемых материалов, а значит, и стоимость конструкции
Все параметры и размеры указываются в исходном чертеже.
Это интересно: особенности расчета бетонных лестниц.
Этап #1. Выбор типа лестницы
Для начала необходимо выбрать форму и тип конструкции лестницы. По конструкции все монолитные бетонные лестницы можно разделить на прямые (одномаршевые и двухмаршевые) и винтовые (спиральные).
Самый простой вариант – прямая одномаршевая лестница, вписанная между двух стен. В этом случае торцевые части лестницы, как таковые, отсутствуют и элементы опалубки крепятся непосредственно на стены.
Более сложно выстроить маршевую лестницу с опорой только на одну стену. Чтобы оформить свободный торец такой лестницы, к конструкции опалубки добавляется одна боковая часть.
Существуют маршевые лестницы без опор на стены, то есть опираются они только на две точки – верхнее и нижнее перекрытие. Чтобы соорудить такую лестницу, необходимо собрать опалубку с двумя боковыми частями.
Несмотря на простоту устройства, построить одномаршевую лестницу нужной высоты в обычном доме не всегда удается. Вернее, не хватает пространства, чтобы ее установить. Тогда выстраивают двухмаршевую лестницу, марши которой расположены между собой под необходимым углом (традиционно 90°). Такие конструкции бывают с межмаршевыми площадками или забежными ступенями.
Однако самыми декоративными (но и сложными в выполнении!) среди монолитных лестниц являются винтовые конструкции. Сложность заключается в изготовлении опалубки неправильной формы, которая сможет сформировать криволинейную лестницу. Для такой опалубки применяется множество штучно изготовленных криволинейных и согнутых щитов. Также трудоемким делом является вязка каркаса неправильной формы.
Винтовые лестницы могут опираться на одну стену или располагаться на расстоянии от стен, то есть иметь две собственные боковые грани.
Таким образом, для домашнего мастера, не желающего пользоваться услугами профессионалов, для строительства лучше предпочесть прямую одномаршевую лестницу.

Особенности и требования к проектированию металлических лестниц
При проектировании не стоит забывать, что каждая лестница из металла имеет свои особенности расчетов в зависимости от вида лестницы, типа конструкции и используемого материала. Вы можете найти подробные расчеты всех параметров лестницы в статье по расчету лестниц, а также воспользоваться строительным калькулятором для каждого из типов.
Опираясь на СНиП, выделим основные параметры, которые необходимо учесть при проектировании лестницы из металла в частном доме:
- число ступенек – расчет осуществляется относительно длины пролета к высоте ступени;
- ширина ступени – по нормам для комфортного перемещения по лестнице ширина ступени должна быть достаточной для размещения всей ступни;
- высота подступенка – зависит от угла наклона лестницы, комфортная высота составляет порядка 160–180 мм;
- длина ступени – соответствует ширине марша, в зависимости от назначения лестницы для спокойного перемещения в обоих направлениях двух человек, а также для возможности поднятия крупногабаритной мебели достаточно ширины марша порядка 1200 мм;
- потолочный проем – высота должна быть не менее 200 см;
- высота перил – в среднем составляет 90 – 110 см;
- длина косоура или тетивы – рассчитывается по математической формуле Пифагора. (длина тетивы)2 = (высоте косоура)2 + (длина марша)2;

оптимальный угол наклона для лестниц в жилых помещений составляет от 24 до 37°, в зависимости от этого можно будет определять высоту подступенка и ширину ступени;

для поворотных лестниц необходимо рассчитать дополнительные подпорные столбики и поворотную площадку или забежные ступени.
Данные параметры применимы к одномаршевым и многомаршевым лестницам, в случае с винтовыми лестницами есть небольшие отличия:
- Необходимо определить диаметр лестницы, он зависит от длины ступени и от диаметра центрального столба опоры: 2 * (длина ступени) + (диаметр центрального столба).
- Особые параметры также идут к форме и размеру ступени. Вследствие того, что ступень сужается к опоре крепления, необходимо придерживаться следующих параметров: в самом узком месте ширина должна быть не менее 10 см, в центральной части подъема – не менее 20 см, в самой широкой части – не более 40 см.
Выполнив расчеты всех вышеобозначенных параметров, необходимо начертить лестницу и все комплектующие для лестницы отдельно, как минимум, в двух проекциях – это вид сверху и вид сбоку. Выполнение чертежа необходимо для наглядного представления как каждого элемента в отдельности (форма ступени и узор балюстрады или ограждения), так и всей лестницы в целом.
Металл, используемый для лестницы, выбирают индивидуально, опираясь на расчеты, с учетом запаса прочности в зависимости от типа конструкции:
- Закрытая – подразумевает, что каркас лестницы будет обшиваться, в таком случае не важна форма используемых металлических элементов, они все равно будут скрыты. Используются двутавр, уголки.
- Открытая – металлический каркас не закрывается, в таком случае целесообразней использовать квадратную или прямоугольную трубу.
Лестницы из металла при соблюдении всех норм и требований при проектировании и строительстве обладают рядом преимуществ:

- прочность и долговечность конструкции;
- возможность изготовления лестниц различной формы и с красивыми узорами (особенно на кованых лестницах);
- металл хорошо комбинируется со всеми другими материалами;
К минусам можно отнести следующие факторы:
- металл подвержен коррозии, но данное явление возможно предотвратить, заранее обработав и покрасив лестницу;
- металл тяжелый материал, что делает монтаж железной лестницы в одиночку очень сложной задачей;
- для того чтобы сварить лестницу из металла, желательно наличие опыта работы со сваркой.
Преимущества лестницы из бетона
Бетонные лестницы имеют следующие преимущества:
- устойчивость к воздействию влаги, пламени и других внешних факторов;
- прочность, повысить которую можно за счет использования стальной арматуры;
- есть несколько вариантов декоративной отделки.
Если построить черновую лестницу, по ней можно переносить стройматериал или использовать ее для передвижений.
Бетон не гниет, его не подточат жуки или другие насекомые, он не боится перепадов температуры. Готовая лестница не скрипит, не рассыхается со временем, уход за ней минимальный. Конструкция из железобетона может быть любой формы.
Армирование монолитной плиты перекрытия — схема и этапы работ
В строительстве самым распространенным изделием из железобетона считается плита перекрытия.

Для придания такой конструкции крепкой основы выполняют армирование монолитной плиты перекрытия – в этом случае арматуру протягивают, выдерживая специально подобранные размеры (они зависят от перекрываемой площади).
Армирование в данном случае позволяет создать прочную и качественную поверхность, обладающую рядом преимуществ:

- для таких операций не требуется громоздкая строительная техника, в частности – подъемный кран;
- таким образом могут создаваться даже нестандартные по размерам перекрытия;
- конструкция получается очень прочной, способна выдерживать колоссальные напряжения и длительное воздействие огня (для сравнения – перекрытие из дерева способно выдержать огневое воздействие только 25 минут, а монолитное выдерживает более часа).
Основные правила армирования плиты перекрытия

Понятно, что армирование плитыперекрытия должно осуществляться в соответствии с определенными технологическими требованиями. Всего таких требований несколько, о них и пойдет речь далее:
- Напряженная сетка, состоящая из высокопрочных канатов, используется для армирования плит, перекрывающих пролеты и имеющих длину более 8 метров;
- Чаще всего для армирования используют стандартные сварные сетки из прутьев диаметром более 6 мм (в основном, от 8 до 14 мм). Расстояние между такими прутьями не должно быть более 60 см;Подготовленная под заливку бетона армировка
- Толщина плиты зависит от ширины перекрытия как 1:30. Армирование прутьями выполняется в том случае, если это соотношение меньше;
- Толщина плиты менее 15 см позволяет ограничиться однослойным армированием, а большая толщина потребует создания двух слоев (одного – снизу, а другого – сверху);
- Для заливки арматуры следует использовать жидкий бетон марки не ниже М200 – другие материалы не смогут обеспечить требуемой прочности;
- Обязательно выполняется так называемая схема армирования монолитного перекрытия. Она предусматривает дополнительное усиление в некоторых местах. Так, усилению подлежат: середина плиты, места касания с опорами, места скопления нагрузок и места соприкосновения с отверстиями;
- Без точного технологического расчета самостоятельное выполнение армирования невозможно. При необходимости выполнять дополнительное армирование, использую отдельные прутья, длина которых находится в диапазоне от 400 до 1500 мм (эта величина зависит от длины пролета и ожидаемой нагрузки);
- Дополнительное армирование часто применяется только для отверстий, а основное – выполняется всплошную. В то же время опалубку необходимо выполнять во всю длину.

Этапы выполнения работ по армированию
Самым важным этапом считается установка опалубки. Для этого можно использовать и древесину, главное – чтобы стойки опалубки закреплялись надежно и прочно. Ведь вес бетона, используемого при проведении такой операции, как армирование монолитного перекрытия, может достигать трехсот килограмм на один квадратный метр перекрытия.

Опалубка включает в себя и защитный слой арматуры, состоящей из прутьев не менее 20 мм в диаметре. Под сетку в опалубке следует уложить специальные опоры. После того, как получившаяся конструкция будет залита бетоном, следует технологическое время выдержки – около четырех недель.
Конструкция считается готовой после полного высыхания. Только после этого ее можно подвергать в полной мере тем нагрузкам, которые использовались в расчетах.

Составляющие монолитной плиты перекрытия
Если говорить подробнее о составляющих, то стандартная схема армирования плиты перекрытия выглядит следующим образом:

- рабочие стержни в нижней части плиты;
- рабочие стержни в верхней части;
- армировка, перераспределяющая нагрузку;
- подставки из катанки.
Используемые схемы могут иметь и существенные отличия, поэтому профессиональная консультация не помешает, так как иногда сложно бывает самостоятельно рассчитать планируемую нагрузку. Впрочем, вы можете руководствоваться и общими принципами, ведь железобетонные конструкции работают одинаково.

Как правило, нагрузка на такие изделия осуществляется сверху вниз, а затем она равномерно распределяется по всей площади перекрытия.
Соответственно, основная часть нагрузки приходится на арматуру, расположенную снизу – сверху плита испытывает нагрузки на сжатие (они хорошо переносятся и просто бетоном, без дополнительного упрочнения).

А вот нижняя часть из-за нагрузок на растяжение как раз и нуждается в специальном усилении.
Материалы
Планируя изготовление лестниц из бетона своими силами, необходимо не только определиться с формами и размерами ступеней, но и рассчитать количество необходимых материалов. Если проект был заказан у специалистов, то перечень материалов с указанием требуемого количества будет приведен в спецификации.
Если расчет бетонной лестницы и проектирование производились самостоятельно, то определиться с объемами материалов поможет онлайн калькулятор.
Обычно для заливки лестниц, берется раствор марки М200 класса В15. При классическом затворении данной марки бетона не используются минеральные добавки.
Пропорции компонентов бетона:
- цемент — 1 часть;
- просеянный песок — 2,8 части;
- щебень или гравий — 3,8 части;
- вода — 0,7 части.

Составляющие бетонного раствора: цемент, песок, щебень
Любая бетонная конструкция, испытывающая нагрузки, усиливается внутренним стальным каркасом. В случае с лестничными маршами, как правило, используют стальной армирующий прут периодического профиля диаметром от 8 до 12 мм. В единый усиливающий каркас прутья соединяют при помощи сварки или связкой. Связка армации производится строительной проволокой диаметром 1 — 2 мм.

Для армирования ступеней используется горячекатаная арматура периодического профиля различного диаметра
Размер ступеней.
Рекомендованные значения.
Мастер Новицкий Олег Вадимович в книге «Современные лестницы. Проектирование, изготовление, монтаж. »
(наилучшие рекомендации автору и этому изумительному труду)
упоминает рекомендованные и неоднократно проверенные практикой значения для подъема (h) и проступи (a) ступеней:
h x a = 150×300, 160×300, 170×290 мм .
Эти размеры хороши, но к сожалению не могут быть использованы если дом уже построен и общая высота лестницы (H) не кратна отдельно взятой ступени (h).
В таком случае мы можем обратиться к формулам расчета:
Формула удобства и формула безопасности.
Широко известна формула удобств:
Согласно этому соотношению лестница будет наиболее удобной.
Лестница считается безопасной если сумма размеров (с) ширины проступи и высоты подступенка равняется 45 см. (30+15, 27+18, 25+20).
Соответственно данное уравнение носит название формулы безопасности.
Трудность в том, что данные формулы применимы в небольшом диапазоне размеров и не всегда удается реализовать необходимую пропорцию на практике. В таком случае следует с минимальным отклонением «попасть» в указанные формулы или воспользоваться универсальной формулой Блонделя, которая учитывает средний шаг человека. (подробнее ниже ).
В спец. литературе под авторством Самойлова В.С. «Современный загородный дом» рекомендована следующая таблица:
Высота и ширина ступеней при их различном количестве ступеней и уклоне
Обратите внимание: в одномаршевых лестницах, а также в одном марше двух- и трехмаршевых лестниц в пределах первого этажа допускается не более 18 подъемов (ступеней). Предельная высота ступени 220 мм
(СНиП 21-01-97)
(СНиП 21-01-97)
Предельная высота ступени 220 мм. (СНиП 21-01-97)
Для проектирования простой деревянной лестницы на косоурах замерьте высоту между этажами (расстояние по вертикали от пола нижнего этажа до пола верхнего).
К слову высота между этажами — это самый «больной» размер. В домах из камня сплошь и рядом встречаются отклонения от проекта на 4-5 см, а деревянные подвержены усушке и усадке (до 15 см. на этаж). В идеале следует дождаться полной усушки сруба за несколько лет.
Также размеры для расчета лестницы лучше снимать когда настелены чистовые полы или четко задавать горизонтальные уровни высот.
Итак, пусть высота в нашем случае: H = 278 см.
Выбираем высоту подступенка: пусть h = 18 см. разделив высоту между этажами на высоту подступенков получается необходимое кол-во ступеней: 270. 18 = 15
Для определения оптимальной ширины ступени используйте формулу удобств. a — h = 12. h = 18 см. Удобная ширина проступи: a = 12 + h = 30 см.
Т.о необходимо 15 ступеней шириной 30 см. и длиной зависящей от ширины проема в межэтажном перекрытии.
Проверям лестницу по формуле безопасности: a + h = 46 + 3 см
В данном случае: 18+ 30 = 48 см.
Лестница безопасна и удобна в эксплуатации.
( Данный пример вычислений приводит Столяров А.Н. «Строим лестницы». )
Французский архитектор и инженер ещё в далеком 1672 г. предложил следующее соотношение:
в котором S — это средний шаг человека, который лежит в пределах 600 — 640 мм .
Т.о. формула Блонделя может быть преобразована в неравенство:
600
Нижним приемлемым для практики результатом будет min. подъем ступени:
h = 120 мм, a = 400 мм, уклон 17 градусов. С меньшим углом выполняют уже не лестницу, а пандус (рампу) — пологую наклонную площадку.
h = 220 мм, a = 200 мм, уклон 48 градусов. На верхнем пределе формулы Блонделя получается не самая удобная лестница пригодная к эксплуатации только при движении лицом к ступеням.
Спуск по лесенке опаснее чем подъем, следовательно удобство использования оценивают на движении вниз.
Пример размышлений мастера согласно формуле Блонделя:
Замеряем высоту между этажами H = 3050 мм.
Определяем подъем ступеней h путем деления H на возможное число подъемов (n).
При 17 подъемах: h = H / n = 3050 / 17 = 179.4 мм. При 18: h = H / n = 3050/18=169.4 мм. При 19: h = H / n = 3050/19 = 160.5 мм.
Далее вычисляем линию хода: А = 5000 мм
Длина линии хода не должна быть меньше высоты между этажами (H) (иначе лестница будет непрактично крутая ).
В нашем примере: А (5000) > H (3050)
При n = 18 проступь a = 5000 / ( n — 1 ) = 294мм.
(n-1) Действительное число ступеней на 1 меньше расчетного значения. Данный факт легко принять если первую ступень считать на уровне пола.
Параметр шага по Блонделю: 169 x 2 + 294 = 632. Следовательно размер приемлем, органичен и лежит в пределах среднего шага человека.
Т.о. мы определили ширину проступи и высоту подступенка для удобного перемещения, однако этого недостаточно для возведения комфортной и безопасной лестницы.
Только что в размышлениях была упомянута линия хода (А). Давайте рассмотрим подробнее этот и другие параметры, которые необходимо учитывать при проектировании лестницы.
Этап #5. Заливка бетона
Для лестницы используют бетон марки не ниже М200 (класс – не ниже B15). Его либо замешивают самостоятельно при помощи бетономешалки, либо заказывают на РБУ.
Очень важное правило: бетон для лестницы должен содержать щебень размером не меньше 10-20 мм. Крупный щебень будет способствовать удерживанию бетона в пространстве ступенек
Более мелкий заполнитель, наоборот, сделает бетон подвижным и тягучим, что приведет к его вытеканию из опалубки ступеней.
Заливка выполняется по следующей схеме:
1. Начинают заливку с нижних ступеней. Вначале заливают бетоном 2-3 нижние ступени.
2. Утрамбовывают бетон. Трамбовка способствует увеличению плотности и прочности состава, так как удаляет из его толщи воздушные карманы. Самый легкий способ трамбовки: после заливки бетон протыкают арматурой в нескольких местах. Однако данный метод не слишком надежен. Следует помнить, что 1% недоуплотнения тяжелого бетона приводит к уменьшению его прочности на 5-7%! Поэтому профессионалы предпочитают утрамбовывать бетон не арматурой, а специальным механизмом – строительным вибратором.
При любом виде трамбовки часть бетона будет выдавлена через опалубку. Выдавленный бетон перебрасывают вверх или вниз (туда, где наблюдается недостаточное количество смеси).
3. Ступеням придают окончательную форму, заглаживая их мастерком (кельмой).
4. Таким же образом заливают все вышележащие ступени.
5. Залитый бетон накрывают пленкой, чтобы не допустить преждевременного застывания и образования трещин. Вместо пленки можно воспользоваться другим методом: периодически увлажнять еще не застывший бетон, сбрызгивая его водой.

Винтовые лестницы
Конструкции винтовых лестниц отличаются весьма компактными габаритами, поэтому они занимают совсем мало места.
При этом, кроме достоинств подобных конструкций, у них имеются и некоторые недостатки. К таким недостаткам следует отнести неудобство в использовании, тем более, что по таким лестницам вряд ли удастся поднять на второй этаж что-то громоздкое. Поэтому винтовые лестницы не пользуются особой популярностью, не смотря на довольно эстетичный и практичный внешний вид.
Расчет винтовой лестницы
Проектирование винтовой лестницы – это хлопотное и ответственное дело, поскольку нужно учитывать тот факт, что над головой человека располагаются ступеньки. В связи с этим, нужно учитывать рост жильцов.
Существует еще ряд особенностей. Дело в том, что ступени не имеют одинаковую ширину, поскольку они с одной стороны уже, а с другой шире. Узкая часть всегда находится в месте крепления к несущей опоре (столбу). Широкая часть располагается в местах примыкания ступенек к стенам помещения. В качестве базового значения ширины ступени принимается значение, расположенное в средней части ступеней. При этом, наибольшая ширина не должна выходить за пределы 40 сантиметров.
Ширина пролета лежит в пределах 50-100 см, при этом для всей конструкции необходимо иметь удвоенное значение ширины пролета.
Сборная колонна – основа конструкции
Конструкция винтовой лестницы на основе сборной колонны отличается сравнительной простотой, поскольку достаточно закрепить трубу и на ней смонтировать элементы лестницы.
Конструкция лестницы на сборочной колонне
Конструкция такой лестницы состоит из нескольких основных элементов, таких как труба (диаметром порядка 40 мм), ступени, балясины, промежуточные цилиндры и т.д.
Конструкция винтовой лестницы
Все подобные элементы устанавливаются на определенных расстояниях друг от друга, в зависимости от размеров лестницы. При этом следует придерживаться технических характеристик конструкции, чтобы лестницей удобно было пользоваться.
Монтаж лестницы начинается с установки и закрепления основного элемента – столба (трубы). Для этого в полу первого этажа и в потолке делаются отверстия, которые соответствуют диаметру столба (трубы). После этого труба вставляется в отверстие и надежно закрепляется. Чем надежнее будет крепление, тем надежнее получится вся конструкция, при этом следует так же надежно закрепить всю конструкцию, а также нужно подумать о том, что на трубу (на столб) насаживаются многие элементы, в том числе и балясины. На чертеже имеются все необходимые размеры подобной винтовой лестницы.
Чертеж элементов лестницы
В качестве материала для ступеней подойдет клееная доска или мебельный щит, но наиболее предпочтительным считается клееная древесина, поскольку ее не поведет, и она не потеряет свой товарный вид при сушке.
На видео можно поэтапно увидеть, как собирается подобная лестница. При этом следует отметить, что данная конструкция состоит из сборного столба, хотя допустимо применить и цельный. Единственная проблема – это сложность сборки лестницы, поскольку каждый раз придется подниматься на лестницу, чтобы закрепить следующий элемент, в отличие от сборного столба.
Монтаж винтовой лестницы ЮТА
Watch this video on YouTube
Каркас винтовой лестницы своими руками. Самодельная винтовая лестница. Часть 1
Watch this video on YouTube
























































